Zala megye, Vonyarcvashegy
 

Ingatlan adatai
Irányár: 121 900 000 Ft
Típus: ház
Kategória: eladó
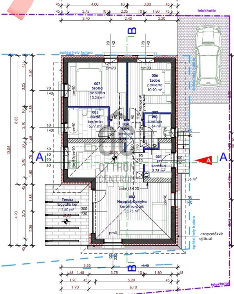
Alapterület: 95 m2
Állapota: -
Építés éve: 2022
Fűtés: gáz (cirko)
Felszereltség: -
Szobák száma: 4
Szintek száma: -
Telekterület: 350 m2
Kert mérete: 350 m2
Erkély mérete: 15 m2
Parkolás: -
Kilátás: -
Egyéb extrák:  
-
Részletes leírás
Figyelen ! Csendes forgalomtól mentes utcában, prémium családi házak eladók!Kiemelt megbízás, kizárólag irodánk kínálatában!--vadonatúj lakópark az erdő mellett--forgalomtól mentes,csendes utca--álandó lakhatásra és nyaralónak is kivállóan alkalmas--350 m2-es telken, netto 80-96 m2-es házak--nagyobb, többgenerációs családoknak 2 lakrészes ikerházak is vannak--az otthon melegéről gázcirko gondoskodik, amit megújuló is segít--a nyári meleg napokon, klímával tudjuk kellemessé tenni a napokat--az elhasznált energiát, napelemekkel tudjuk optimalizálni--2022 május végére kulcsra kész állapotban megtörténik a birtokbaadás--tulajdonviszonyok rendezettekVonyarcvashegy a Keszthelyi-öböl partján, a Keszthelyi-fennsík déli szélénél, Zala megye keleti részén fekszik. Délről a Balaton, északról a hegyek zárják el a települést, így csak kelet-nyugat irányba nyitott. Így fut a Balatonszentgyörgy–Tapolca–Ukk-vasútvonal is keresztül a településen, amelyen a település egy vasútállomása elővárosi szerelvényeket és Pécsről, valamint Szombathelyről gyorsvonatokat fogad.A község főútja a 71-es másodrendű főút, amely a Balaton északi parti településeivel és Keszthellyel köti össze. Vonyarcvashegy Keszthely felől kiválóan megközelíthető autóbusszal, de Tapolcáról sűrűn járnak járatok.A település a 20. század elején tovább nőtt, azonban kiemelkedő fejlődése csak az 1950-es évektől figyelhető meg, amikor a község bekapcsolódott a balatoni turizmusba, jó minőségű strandot hoztak itt létre. 1952-ben új iskolája létesült, 1957-ben pedig egy kemping jött létre. 1960-ban Vonyarcvashegy nagyközséggé alakult, ahol a turizmus meghatározó jelleggel bír.
Hirdető adatai
Hirdető neve: Otthon Centrum
Kapcsolattartó: Pálfi Szabolcs
Hirdető telefonszáma: +36 70 461 9086
Honlap: -