Pest megye, Százhalombatta
 

Ingatlan adatai
Irányár: 280 000 000 Ft
Típus: ház
Kategória: eladó
Alapterület: 280 m2
Állapota: -
Építés éve: 2017
Fűtés: gáz (cirko)
Felszereltség: -
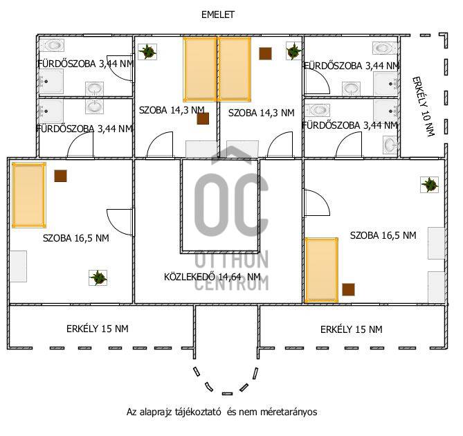
Szobák száma: 6
Szintek száma: -
Telekterület: 789 m2
Kert mérete: 789 m2
Erkély mérete: 80 m2
Parkolás: -
Kilátás: -
Egyéb extrák:  
-
Részletes leírás
SZÁZHALOMBATTA, DUNAFÜREDI RÉSZÉN, közel a gáthoz, Dunához, természethez ELADÓ ÚJSZERŰ STÍLUSOS HÁZ !!!- EXKLUZÍV, MODERN KÍVÜL-BELÜL- IMPOZÁNS , GALÉRIÁS , NAPPALI ÉLETTÉR 100 NM- PARKOSÍTOTT, 40 NM-ES TERASZ KERTI SÜTÖGETŐVEL- VINTAGE HANGULAT- ELEGÁNS MILIŐA közel 800 nm-es telken elhelyezkedő ház, 43 nm-es nappalival, 50 nm-es étkező-konyhával rendelkezik.Elszeparáltan helyezkedik el a nappali élettértől az intim szféra hálószoba,fürdőszoba, gardrób.A házba belépve elénk tárul a tágas hall, amely emeleti , körfolyosós galériás. Az emeleten elhelyezkedő szobák ( 4 )önálló fürdőszobákkal, erkélyekkel rendelkeznek.NYUGALOM SZIGETE, PAZAR KÖRNYEZET!!Dunafüred csendes, zöldes részén helyezkedik el az ingatlan, közel a GÁTHOZ, DUNÁHOZ!
Hirdető adatai
Hirdető neve: Otthon Centrum
Kapcsolattartó: Sebestyén-Teleki Zsófia
Hirdető telefonszáma: +36 70 388 5046
Honlap: -