Baranya megye, Babarc
 

Ingatlan adatai
Irányár: 29 000 000 Ft
Típus: ház
Kategória: eladó
Alapterület: 338 m2
Állapota: felújítást igényel
Építés éve: 1980
Fűtés: gáz (cirko)
Felszereltség: -
Szobák száma: 7
Szintek száma: -
Telekterület: 811 m2
Kert mérete: 811 m2
Erkély mérete: 16 m2
Parkolás: -
Kilátás: -
Egyéb extrák:  
-
Részletes leírás
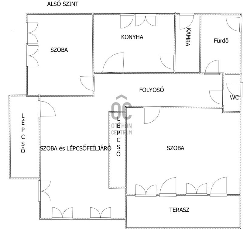
Babarc főtere mellett eladó egy 278 négyzetméteres, két emeletes családi ház. Kedves Ügyfelünk, az ingatlanról videót is készítettünk. Ha meg szeretné nézni, kérem nyissa meg az Otthon Centrum weboldalát, kattintson a „Regisztrációs szám keresése” menüpontra, és írja be ezt a regisztrációs számot a keresőbe: H462580 Itt meg tudja tekinteni az ingatlanról készült videót. Vagy írjon nekem, és szívesen elküldöm a videót.Az épületnek - csak az alsó szintjét lakják, a felső szint befejezésre vár az új tulajdonos elképzelése alapján, ahol már csak a burkolatok hiányoznak,- minden szobája szép nagy méretű, és nem egymásból nyílnak,- fa nyílászárókkal rendelkezik, - 3 fázis bekötve, - fürdőszobájában fürdőkád, és zuhany is megtalálható,- fürdőszoba és wc. külön helyiségben van,- több erkélye is van, a ház két oldalán,- kamrája is szép tágas, - gáz-cirkó fűtés mellett vegyes tüzelésű kályhával is fűthető,- belső lépcsője kényelmes, - tetőtere is beépíthető,- több mint 100 négyzetméteres jó minőségű melléképület is rendelkezésre áll,- a kert egy része teljesen különálló, az út másik oldalán található, mely önállóan is hasznosítható.Ezt a nagyméretű ingatlant ajánlom több generációs családoknak, vállalkozásoknak. Főként olyanoknak, akik nem riadnak vissza a ház befejezésétől. Amennyiben felkeltettem érdeklődését, várom megtisztelő hívását!Teljes körű pénzügyi megoldások ügyintézése díjmentesen.Minden élethelyzetre végzünk pénzügyi elemzést - ha vásárolni szeretne, segítünk, hogy ezt a legjobb feltételek mellett tegye; ha eladni szeretné ingatlanát, nézzük meg, hátha érdemes meglévő hitelét átváltani.Keressen bizalommal, szakértők vagyunk!Regisztrációs szám: H462580
Hirdető adatai
Hirdető neve: Otthon Centrum
Kapcsolattartó: Szegedi Szilvia
Hirdető telefonszáma: +36 70 412 5231
Honlap: -