Somogy megye, Balatonszárszó
 

Ingatlan adatai
Irányár: 122 603 250 Ft
Típus: ház
Kategória: eladó
Alapterület: 101 m2
Állapota: új
Építés éve: 2023
Fűtés: -
Felszereltség: -
Szobák száma: 4
Szintek száma: -
Telekterület: 200 m2
Kert mérete: 200 m2
Erkély mérete: 6 m2
Parkolás: -
Kilátás: -
Egyéb extrák:  
-
Részletes leírás
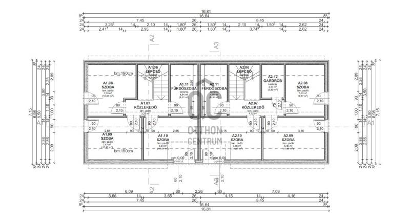
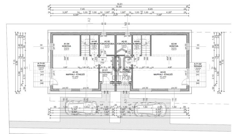
Magas minőségű, alacsony fenntartási költségű lakások eladók Balatonszárszó családias részén.Együtt laknátok, de mégis külön? Állandó otthonnak, nyaralónak, befektetésnek egyaránt alkalmas ez a 4 lakásos társasház.Még bármelyiket választhatja!A 904 nm-es telken 4db lakás (88,23-100,66nm) került kialakításra a legkorszerűbb technikával.Mindegyik saját terasszal (6nm), privát kert résszel (200nm), nyitott autóbeállóval rendelkezik.Műszaki leírás:-Az épület alapozása gyengén vasalt monolit vasbeton gerendarács sávalapokkal történt.-A külső teherhordó falszerkezetek és a belső teherhordó illetve nem teherhordó válaszfalak is Horizont vékony falú acél vázszerkezetű szerelt falak.-A vázszerkezet bordái között 14cm szálas hőszigetelés kerül elhelyezésre, erre 8 cm vastag Dryvit hőszigetelő lemez került.-A padlószerkezetben 15cm expandált polisztirolhab, a tetőszerkezetben 25 cm szálas ásványgyapot réteg biztosítja a megfelelő hőszigetelést.-A lábazati részen 8 cm szigetelés készült.-Az alapvető közművek (víz, villany, csatorna) ellátása az utcai hálózatról történik, a közművek biztosítottak.-Az épület fűtési energiaellátását elektromos üzemű levegős hőszivattyúval biztosítjuk szekunder oldalon padlófűtési körök kialakításával.Az épület beosztása:Földszinten található egy előszoba, nappali-étkező, konyha, fürdőszoba, kamra.Tetőtérben 3 db hálószoba, fürdőszoba, közlekedő helyiség került kialakításra.Várható átadás 2023 első negyedév.A feltüntetett ár 5% ÁFÁ-t tartalmaz!CSOK igényelhető!
Hirdető adatai
Hirdető neve: Otthon Centrum
Kapcsolattartó: Csizmadia-Schveiger Eszter
Hirdető telefonszáma: +36 70 388 6291
Honlap: -