Budapest, X.kerület
 

Ingatlan adatai
Irányár: 149 900 000 Ft
Típus: ház
Kategória: eladó
Alapterület: 119 m2
Állapota: -
Építés éve: 1934
Fűtés: -
Felszereltség: -
Szobák száma: 5
Szintek száma: -
Telekterület: 1 296 m2
Kert mérete: 1 296 m2
Erkély mérete: 20 m2
Parkolás: -
Kilátás: -
Egyéb extrák:  
-
Részletes leírás
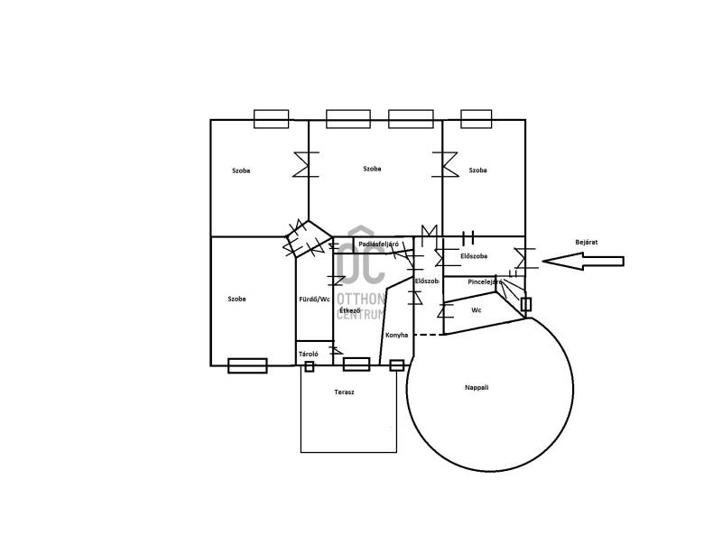
A X. kerület központi részén kínálunk megvételre egy jó állapotú nagypolgári családi házat.- 1296 nm-es telek- 116 nm lakótér- nappali/télikert + 4 szoba - konyha- étkező- kádas fürdőszoba- kertre nyíló hatalmas terasz árnyékolóval- fűtés gázkazánnal- 1 állásos aknás garázs - padlástérSzuterén :- nagyméretű kádas - zuhanyzós fürdőszoba - gardróbszoba - a telken melléképületben egy garzonlakásAzonnal költözhető! Kiváló közlekedés, közelben villamos és buszmegálló, pár percre bevásárlási lehetőségek.Csendes, nyugodt környék, kisgyerekes családoknak kiváló lehetőség! Ne maradjon le róla!
Hirdető adatai
Hirdető neve: Otthon Centrum
Kapcsolattartó: Kusnyár Tímea
Hirdető telefonszáma: +36 70 412 5286
Honlap: -