Bács-Kiskun megye, Baja
 

Ingatlan adatai
Irányár: 92 000 000 Ft
Típus: ház
Kategória: eladó
Alapterület: 176 m2
Állapota: -
Építés éve: 1992
Fűtés: gáz (cirko)
Felszereltség: -
Szobák száma: 6
Szintek száma: -
Telekterület: 725 m2
Kert mérete: 725 m2
Erkély mérete: 12 m2
Parkolás: -
Kilátás: -
Egyéb extrák:  
-
Részletes leírás
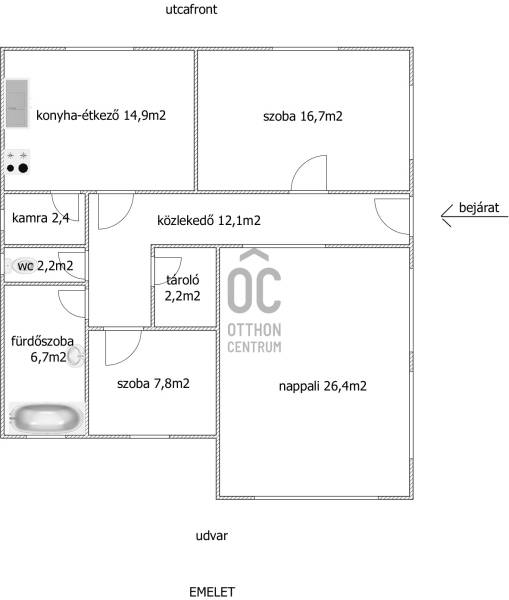
Szállásváros egyik csendes, rendezett, aszfaltozott utcájában vár rád ez a 725 m2-es telken álló, 1992-ben épült családi ház, amely két teljesen önálló lakószinttel rendelkezik. Tökéletes választás, ha együtt költöznél a családdal, vagy szeretnél egy lakrészt kiadni mellékjövedelemért.Földszint – 84,5 m2Két külön nyíló szoba, tágas előszoba (hall), konyha-étkező, kamra, fürdő + WC.Állapot: átlagos • Fűtés: gázkonvektor • Meleg víz: villanybojler.Emelet – 91,36 m2Három külön nyíló szoba, konyha-étkező, kamra, fürdő + WC.Fűtés: gázkazán + kandalló •Meleg víz: villanybojler • Állapot: jó.Mindkét lakószint külön gázórával működik, így a kedvezményes gázmennyiség mindkét lakásban igénybe vehető.3 fázis adott, a bojlerek pedig éjszakai áramról működnek.Az udvarban több melléképület is helyet kapott: nyári konyha, műhely, tároló, pince, plusz egy brutálisan tágas, 3 autós garázs (3×12,5 m). A kert gondozását pedig a fúrt kút könnyíti meg. Ez az ingatlan szuper választás:- szülő-gyerek együttköltözéshez,- befektetésnek, albérlet kiadására,- nagycsaládosoknak vagy több generációnak. Ha szeretnéd élőben is látni ezt a sokoldalú ingatlant, keress bizalommal – nézzük meg együtt!
Hirdető adatai
Hirdető neve: Otthon Centrum
Kapcsolattartó: Szőke István
Hirdető telefonszáma: +36 70 716 9476
Honlap: -