Hajdú-Bihar megye, Hajdúszoboszló
 

Ingatlan adatai
Irányár: 95 000 000 Ft
Típus: ház
Kategória: eladó
Alapterület: 109 m2
Állapota: új
Építés éve: 2024
Fűtés: -
Felszereltség: -
Szobák száma: 4
Szintek száma: -
Telekterület: 550 m2
Kert mérete: 550 m2
Erkély mérete: -
Parkolás: -
Kilátás: -
Egyéb extrák:  
-
Részletes leírás
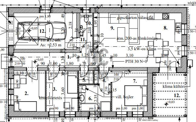
Hajdúszoboszlón, családi házas övezetben, új építésű családi ház eladó!- 550 nm-es telek- 140/109 nm-es ingatlan- amerikai konyha-nappali- 3 szoba- fürdőszoba, külön WC- garázs- 44 cm-es klíma falazat + szigetelés- műanyag nyílászáró, 3 rétegű üvegezés- cserép tetőfedés- tervezett hőszivattyús fűtésJelenleg 50%-os készültségben, várható átadás szerződéskötéstől 6 hónap.A vételár kulcsrakész állapotot tartalmazza.A hirdetésben szereplő információk a megbízótól kapott adatok alapján készültek, pontosságukért felelősséget nem vállalunk!Amennyiben vásárláshoz hitelre is szüksége van, független hitel tanácsadónk ingyenesen tud Önnek segítségetnyújtani, a legjobb konstrukciók kiválasztásában és a folyamat lebonyolításában.Irodánk kereső ügyfeleinknek teljes körű szolgáltatást nyújt, szakszerű tanácsadással, energetikaitanúsítvány elkészítésével, hitelügyintézéssel és profi ügyvédi segítséggel.Abban az esetben ha az ingatlan felkeltette érdeklődését keressen bizalommal!
Hirdető adatai
Hirdető neve: Otthon Centrum
Kapcsolattartó: Nagy Ádám
Hirdető telefonszáma: +36 70 469 3411
Honlap: -