Budapest, XV.kerület
 

Ingatlan adatai
Irányár: 800 000 000 Ft
Típus: ház
Kategória: eladó
Alapterület: 609 m2
Állapota: -
Építés éve: 2024
Fűtés: -
Felszereltség: -
Szobák száma: 12
Szintek száma: -
Telekterület: 321 m2
Kert mérete: 321 m2
Erkély mérete: 69 m2
Parkolás: -
Kilátás: -
Egyéb extrák:  
-
Részletes leírás
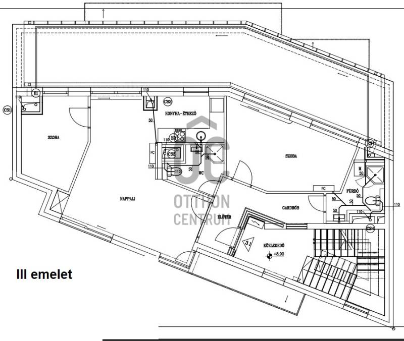
Alakalmas székháznak, irodaháznak vagy lakás célú befektetésre.Eladásra kínálunk egy igényesen, a legmodernebb technológiával épülő, hőszivattyús fűtés/hűtés rendszerrel ellátott, padlófűtéses, klimatizált, 5 szintes (tetőtérrel) társasház, mely irodásvá is átalakítható. Az épület földszintjén teremgarázs található, melyből közvetlenül elérhetők a külső parkolók is. A legfelső emeleten egy penthouse lakás kapott helyet.Az épület főbb jellemzői:Nyílászárók: Antracit színű, 3 rétegű hő- és hangszigetelő üvegezéssel ellátott ablakok és dupla elektromos garázskapu.Hőszigetelés: 15 cm-es hőszigetelő rétegFűtés: Padlófűtés.Lakások elosztása:Földszint: Teremgarázs és külső parkolók1. emelet:1.1 lakás: 43 m² + 3,2 m² erkély1.2 lakás: 52 m² + 5,6 m² erkély2. emelet:2.1 lakás: 49 m² + 4,6 m² erkély + 3,2 m² erkély2.2 lakás: 52 m² + 5,6 m² erkély + 2,8 m² erkély3. emelet:Penthouse lakás: 77,2 m² + 39 m² terasz + 4,8 m² erkély, 3 hálószobával és hatalmas keleti tájolású terasszal.Tetőtér:Gépészeti helyiség és tárolók kialakítása.Várható elkészülés: 2024 nyara, ezt követően a műszaki átadás és a használatbavételi engedély megszerzése történik.Az ár befejezett állapotra vonatkozik, belső módosítás, átalakítás még kérhető.További információkért és részletekért kérjük, vegye fel velünk a kapcsolatot!
Hirdető adatai
Hirdető neve: Otthon Centrum
Kapcsolattartó: Pomucz-Nagy Anita
Hirdető telefonszáma: +36 70 469 3296
Honlap: -