Fejér megye, Ercsi
 

Ingatlan adatai
Irányár: 30 900 000 Ft
Típus: ház
Kategória: eladó
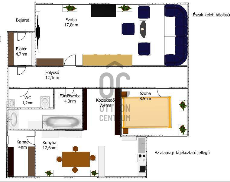
Alapterület: 76 m2
Állapota: -
Építés éve: 1980
Fűtés: gáz (cirko)
Felszereltség: -
Szobák száma: 2
Szintek száma: -
Telekterület: 646 m2
Kert mérete: 646 m2
Erkély mérete: -
Parkolás: -
Kilátás: -
Egyéb extrák:  
-
Részletes leírás
Saroktelken ajánlom ezt a családi házat Savanyúréten Ercsiben!- kisebb 2 GENERÁCIÓSSÁ alakítható- belül SZÉPEN FELÚJÍTOTT- BŐVÍTHETŐ a tetőtérrel- AMERIKAI KONYHÁS NAPPALI-ÉTKEZŐ és- 2 hálószoba- használatban egy KÜLÖNÁLLÓ TÁROLÓElsősorban készpénzes vevőket várunk!M6-OS AUTÓPÁLYA Ercsi kijárata 10 perc autóútra, VASÚTÁLLOMÁS 4 PERCNYI SÉTÁRA, buszmegálló is néhány percre elérhető.Óvoda, iskola, bevásárlási lehetőség (SPAR) és a rendőrség a közelben, alig néhány száz méteren belül találhatóak.A hét bármely napján elérhető vagyok!NE SZALASSZA EL AZ ALKALMAT - VÁROM MEGKERESÉSÉT!
Hirdető adatai
Hirdető neve: Otthon Centrum
Kapcsolattartó: Lelkes Ágnes
Hirdető telefonszáma: +36 70 412 3716
Honlap: -