Tolna megye, Paks
 

Ingatlan adatai
Irányár: 13 500 000 Ft
Típus: ház
Kategória: eladó
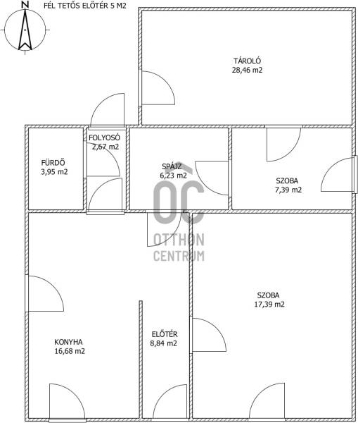
Alapterület: 65 m2
Állapota: -
Építés éve: 2000
Fűtés: egyéb
Felszereltség: -
Szobák száma: 1
Szintek száma: -
Telekterület: 2 211 m2
Kert mérete: 2 211 m2
Erkély mérete: -
Parkolás: -
Kilátás: -
Egyéb extrák:  
-
Részletes leírás
Eladó Pakstól 5 km-re nyaraló környezetbe Ház / Művelési ágból ki vett/ 2211m2 területen. igazi nyugalom szigete, nyárfa erdővel körül vett terület.63 m2-es belül igény szerint felújítandó tégla ház. 1 szoba konyha-ebédlő spájz, fürdő, wc. 2 helyiségből ki alakítható még 2 szoba. A ház 10 cm-es szigetelést kapott, így egész évbe lakható.30 m2-es gipszkarton tároló található és be kerített baromfi ólak.Villany be vezetve, fúrtkút a telken, Fürdőszoba vízvezeték meg van csinálva, annyi a dolga az új tulajdonosnak, hogy rá köt a kútra. 3-4m3- es emésztőgödör van.Ha érdekel nyugodtan keressen és meg nézzük együtt.
Hirdető adatai
Hirdető neve: Otthon Centrum
Kapcsolattartó: Molnár Ida
Hirdető telefonszáma: +36 70 469 3596
Honlap: -