Zala megye, Hévíz
 

Ingatlan adatai
Irányár: 249 000 000 Ft
Típus: ház
Kategória: eladó
Alapterület: 412 m2
Állapota: -
Építés éve: 2004
Fűtés: gáz (cirko)
Felszereltség: -
Szobák száma: 9
Szintek száma: -
Telekterület: 689 m2
Kert mérete: 689 m2
Erkély mérete: 20 m2
Parkolás: -
Kilátás: -
Egyéb extrák:  
-
Részletes leírás
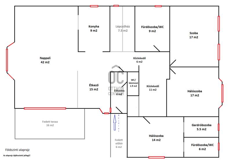
Kiemelt megbízás irodánk kínálatában!Eladásra kínálom Hévíz egyik legkedveltebb utcájában található remek kialakítással rendelkező igényes családi házat!A ház melegéről gáz-cirkó fűtés, padlófűtésen és radiátorokon keresztül, illetve hűtő-fűtő klímák gondoskodnak. A ház tetején napelemeket helyeztek el, a garázsban elektromos autótöltő is helyet kapott.A ház riasztóval és kamerarendszerrel is rendelkezik, az udvaron automata öntözőrendszer található.A földszinten: előszoba, tágas nappali, terasz, konyha, étkező, közlekedő, fürdőszoba, WC/kézmosó, 3 szoba, melyből az egyik gardróbszobával és fürdőszobával is rendelkezik.A felső szinten: nappali, fürdőszoba, mosókonyha, közlekedő, dolgozószoba, 2 szoba, melyből egy erkélyes.A pinceszinten: wellness részleg szaunával és edzőteremmel, WC/kézmosó, dupla garázs, tároló és kazánház kapott helyet.Ha a hirdetés felkeltette figyelmét, megtekintés céljából hívjon bizalommal!Hévíz:Az Ön által kiválasztott ingatlan a Nyugat-Balatoni Régióban 8 km-re a Balatontól található. Így bármely évszak legyen, bármely korosztály számára kikapcsolódási lehetőséget jelenthet ezen fürdők SZÉLES SKÁLÁJÚ WELLNESS SZOLGÁLTATÁSAI! Csodálatos zöld környezetben várja Önt a világon egyedülálló Hévízi gyógytó. A tó körül elterülő erdős parkok és a város védett növényvilága a nyugodt pihenés és gyógyulás záloga. A fürdőváros tiszta levegője és barátságos atmoszférája, az itt-élők vendégszeretet mind fokozzák a gyógyhatást. A tó egész évben várja vendégeit, mivel a víz hőmérséklete télen sem csökken 22 C° alá, nyáron pedig eléri a 38 C°-ot is. A forrásbarlangból másodpercenként előtörő 410 liternek köszönhetően a tó vize három és fél nap alatt teljesen kicserélődik, ezáltal folyamatosan tiszta marad.Az adatok kizárólag a megbízóink által rendelkezésünkre bocsátott információkon alapulnak.Fentiekre tekintettel, az adatok teljességéért, helyességéért és aktualitásáért nem vállalunk felelősséget.Az árváltozás, adatmódosítás és közbeni értékesítés jogát fenntartjuk, mindezekért jogi felelősséget nem áll módunkban vállalni.
Hirdető adatai
Hirdető neve: Otthon Centrum
Kapcsolattartó: Poldauf Róbert
Hirdető telefonszáma: +36 70 469 3266
Honlap: -