Zala megye, Keszthely
 

Ingatlan adatai
Irányár: 114 900 000 Ft
Típus: ház
Kategória: eladó
Alapterület: 175 m2
Állapota: új
Építés éve: 2024
Fűtés: -
Felszereltség: -
Szobák száma: 6
Szintek száma: -
Telekterület: 300 m2
Kert mérete: 300 m2
Erkély mérete: 28 m2
Parkolás: -
Kilátás: -
Egyéb extrák:  
-
Részletes leírás
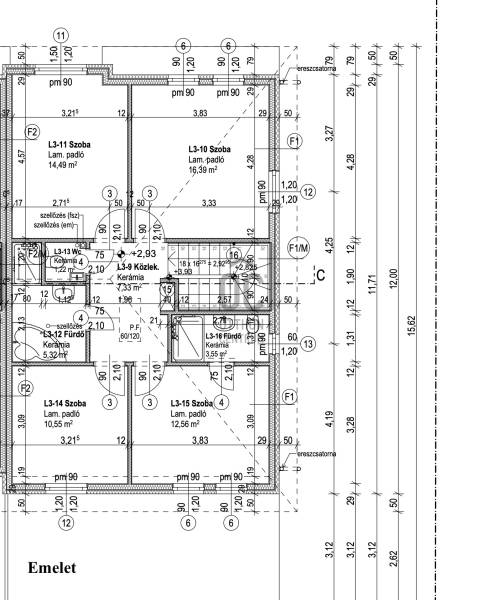
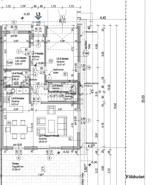
CSAK AZ OTTHON CENTRUM KIEMELT KÍNÁLATÁBAN !Ha egy tágas, kényelmes, jövőbe mutató otthont keres Keszthely kedvelt részén, ne menjen tovább ! Eladásra kínálom Keszthely városközponthoz közeli részén , egy sorház bal szélső lakóegységét !Ez a 2024-ben épült, emelt szintű szerkezetkész ingatlan remek alapot biztosít ahhoz, hogy saját ízlése szerint alakíthassa ki álmai otthonát. Ez a hirdetés Önöknek szól, amennyiben modern, tágas, jól megtervezett ingatlanban képzelik el jövőjüket – és értékelik a praktikus, kis karbantartást igénylő telekméretet.Az ingatlan tökéletes választás lehet otthont nyújtva nagy családosok számára , többgeneráció zavartalan együttélésre vagy akár nyaralóként használva is , ugyanakkor befektetési célra is alkalmas.Keszthely központja és a Balaton part elérhető sétatávolságra található.Továbbá a környéken könnyen elérhető távolságra iskola, óvoda, orvosi rendelő, bevásárló központok, buszmegálló .FŐBB JELLEMZŐK – 114,9 M Ft-ért (emelt szintű szerkezetkész állapot):-acélszerkezetes építésmód -szigetelt - Lakótér: 150 m² + 27,66 m² fedett terasz + 15,47 m² garázs elektromos garázskapuval -két szintes , sorházi ingatlan- Földszinten:▫️ dny -i fekvésű amerikai konyhás nappali + étkező▫️ kamra▫️ 1 szoba▫️ 1 fürdőszoba▫️ fűtött garázs▫️ közlekedő▫️ 27,66 m²-es fedett terasz pergolával – ideális pihenéshez, kerti vacsorákhoz-Emeleten:▫️ 1 szoba saját fürdőszobával▫️ további 3 hálószoba▫️ 1 fürdőszoba▫️ külön WC-Parkolás: fűtött garázs kialakítással + 2 felszíni autóbeálló-Telek területe: 300 m² – füvesített, könnyen karbantartható- gépészet kialakítva -fűtés : padlófűtéses kialakítással -3 rétegű nyílászárók , motoros alumínium redőnyökkel - 27,66 m2 terasz bioklimatikus pergolával fedett , amely akár üvegezhető is ⸻KULCSRAKÉSZ VÁLTOZAT – 126,9 M FtAz ár továbbá tartalmazza:✔ Hőszivattyú beszerelését✔ 5kW Napelemrendszer (szaldós elszámolással ) kiépítését – modern, gazdaságos üzemeltetés✔Szellőzés kialakítása Vent Axia Centra TH100 típusú elszívó ventilátorokkal.✔ Hidegburkolatok – 10.500 Ft/m² értékhatárig szabadon választhatók✔ Laminált padlóburkolat a hálószobákban✔ Egyedi igények szerint választható belső ajtókA belváros közelsége, az energiatakarékos kialakítás és a testre szabhatóság együttesen teszik igazán vonzóvá ezt a lehetőséget.Érdeklődés esetén keressen bizalommal, és beszéljük át, hogyan lehet ez az ingatlan az Ön új otthona!
Hirdető adatai
Hirdető neve: Otthon Centrum
Kapcsolattartó: Molnár Henriett
Hirdető telefonszáma: +36 70 412 5631
Honlap: -