Budapest, XVI.kerület
 

Ingatlan adatai
Irányár: 199 900 000 Ft
Típus: ház
Kategória: eladó
Alapterület: 198 m2
Állapota: új
Építés éve: 2025
Fűtés: -
Felszereltség: -
Szobák száma: 6
Szintek száma: -
Telekterület: 350 m2
Kert mérete: 350 m2
Erkély mérete: 14 m2
Parkolás: -
Kilátás: -
Egyéb extrák:  
-
Részletes leírás
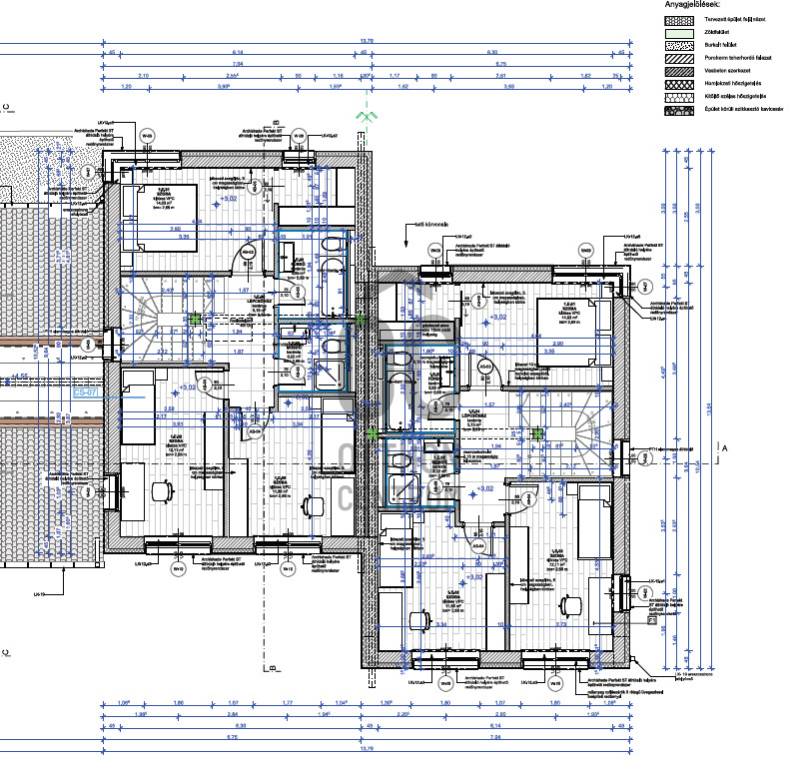
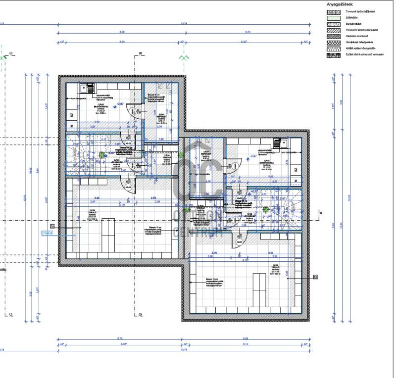
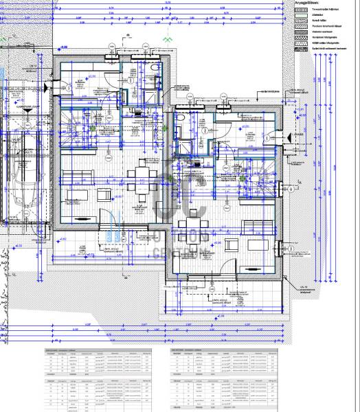
LUXUS FELSZERELTSÉG - MINŐSÉGI KIVITELEZÉS - PRÉMIUM ANYAGHASZNÁLAT5 HÁLÓSZOBA + 4 FÜRDŐSZOBA - PRIVÁT FÜRDŐSZOBA A SZÜLŐKNEK - TÁGAS TEREK - GARÁZSAz újépítésű ikerházak a XVI. kerület frekventált részén épülnek, kiváló közlekedéssel, a telek végében pedig természetvédelmi területtel.Főbb tulajdonságok:- nettó 198 m2, bruttó 244 m2 alapterület,- teljesen alápincézett,- vasbeton pince és födémszerkezet,- geotermikus fűtés-hűtés rendszer, talajszondás rendszerrel,- mennyezet és padló fűtéssel,- 37,5cm VIABLOKK D450 termo téglából épült főfalak, természetesen szellőző,- AA++ energia osztály- Dél-Nyugati tájolás,- hőcserélős rendszer és klíma előkészítés,- 3 rétegű hő- és hangszigetelt üvegek,- elektromos alumínium redőnyök,- 1 autó részére garázs és 1 autó részére kialakított felszíni beálló,- 2026. tavaszi kulcsrakész állapot,- tetőtérben további 2 szoba és egy fürdőszoba kialakítására van lehetőségIngatlan helyiségei a pinceszinten, összesen 56,94 m2:- gépészet 6,12 m2,- mosókonyha 11,13 m2,- lépcsőház 9,39 m2,- tároló 3,16 m2,- tároló 27,14 m2Ingatlan helyiségei a földszinten, összesen 52,56 (66,64) m2:- előszoba 9,60 m2,- fürdőszoba 6,36 m2,- lépcsőház 3,32 m2,- konyha 6,14 m2,- nappali-étkező 27,14 m2,- terasz 14,08 m2,- fedett előtér 6,45 m2,- garázs 18,92 m2Ingatlan helyiségei az emeleten, összesen 50,12 m2:- szoba 14,03 m2,- szoba 12,11 m2,- fürdőszoba 3,95 m2,- lépcsőház 5,15 n2,- mosdó 3,22 m2,- szoba 11,66 m2Ingatlan helyiségei a tetőtérben, összesen 36,14 (42,52) m2:- lépcsőház 4,93 (5,16) m2,- szoba 11,67 (13,99) m2,- szoba 14,75 (18,55) m2,- fürdőszoba 3,78 (3,78) m2,- gépészet 3,15 (3,15) m2A kivitelező megbízható, sokéves szakmai tapasztalattal rendelkezik.Igény esetén bankfüggetlen és DÍJMENTES hiteltanácsadó közreműködését biztosítjuk, aki a teljes folyamaton végigkíséri Önt.Az adásvétel biztonságos és gördülékeny bonyolítása érdekében tapasztalt ingatlan szakjogászaink szolgáltatását is ajánljuk.Kérdés esetén, vagy amennyiben meg szeretné tekinteni, kérem keressen az elérhetőségeimen.A hét minden napján elérhető vagyok 8:00-19:00 között, elfoglaltság esetén visszahívom.Amennyiben még ingatlanát el kell adnia, azügyben is állok rendelkezésére.Referencia szám: U0047903
Hirdető adatai
Hirdető neve: Otthon Centrum
Kapcsolattartó: Nagy Mária
Hirdető telefonszáma: +36 70 716 9111
Honlap: -