Budapest, XVIII.kerület
 

Ingatlan adatai
Irányár: 149 990 000 Ft
Típus: ház
Kategória: eladó
Alapterület: 137 m2
Állapota: új
Építés éve: 2025
Fűtés: -
Felszereltség: -
Szobák száma: 5
Szintek száma: -
Telekterület: 375 m2
Kert mérete: 375 m2
Erkély mérete: -
Parkolás: -
Kilátás: -
Egyéb extrák:  
-
Részletes leírás
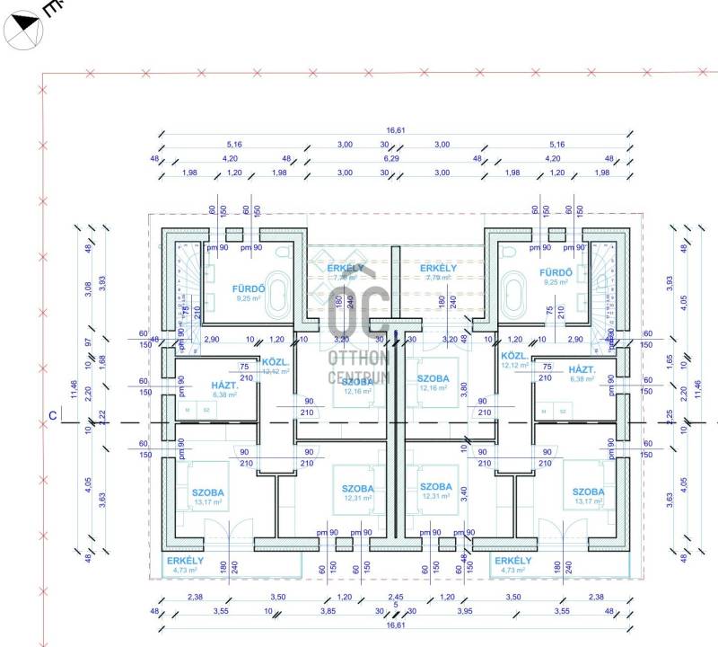
Eladó újépítésű utcafrontos ikerház Budapest XVIII. kerület Almáskert csendes mellékutcájában.137 nm hasznos alapterületű, amerikai konyhás nappali, 4 hálós, 2 fürdőszoba-wc, háztartási helyiség, kamra, garázzsal, terasszal, erkély és saját kerttel.Műszaki tartalom (részlet)- falazata 30-as Leier 10 cm-es grafitos szigeteléssel, lábazat 12 cm XPS szigetelés- válaszfalak 10 cm-es Leier tégla- födémen 20 cm-es kőzetgyapot szigeteléssel- hőszivattyú padlófűtéssel- 3 rétegű külső nyílászárókA fűtése hőszivattyús, padlófűtés az egész házban-választható vagy a nappaliban 3,5 kw-os klíma, vagy klíma kiállás kiépítése minden szobában!-elektromos tolókapu,-elektromos garázskapu,-napelem előkészítés,-komplett kamerarendszer riasztóval beépítveAmi vételár részét képezi:Meleg burkolat: 5000ft/m2 amely tartalmazza a filc alátétet és a szegélyt is.Hideg burkolat: 5000ft/m2 amely tartalmazza a fugát és a burkolat váltókat is.Belső tartozékok, szaniter árak:-beltéri ajtó kilinccsel 80.000 Ft/db-kád tartozékaival 80.000 Ft/db-csap 20.000 Ft/db-mosdó 20.000 Ft/db-plusz víz csatorna kiállás kérésre 50.000 Ft/db-villanykiállás fejegységenként 30.000 Ft/db-Kerti csap ára kompletten szerelve: 100.000 Ft/dbszaniterek belső nyílászárók készültségi foktól függően választhatók.Megbeszélés és egyeztetés alapján kérhetők plusz extrák és változtatások!Az ingtlan Almáskert újépítésű kertvárosi részén lesz található, központhoz közel, jól megközelíthető helyen.A lakás az összes jelenleg futó támogatásra jogosult!Az ingatlan 30% önerővel lefoglalható!Várható átadás 2026 május vége.„Az energetikai tanúsítvány készítése folyamatban van, amint rendelkezésre áll, úgy azzal a hirdetés frissítésre kerül.”Amiben segítünk :független Hitelszakértő, ügyvédi háttér!!Hívjon a hét bármelyik napján további információért!
Hirdető adatai
Hirdető neve: Otthon Centrum
Kapcsolattartó: Tóthné Simon Emőke
Hirdető telefonszáma: +36 70 412 4346
Honlap: -