Tolna megye, Szedres
 

Ingatlan adatai
Irányár: 26 500 000 Ft
Típus: ház
Kategória: eladó
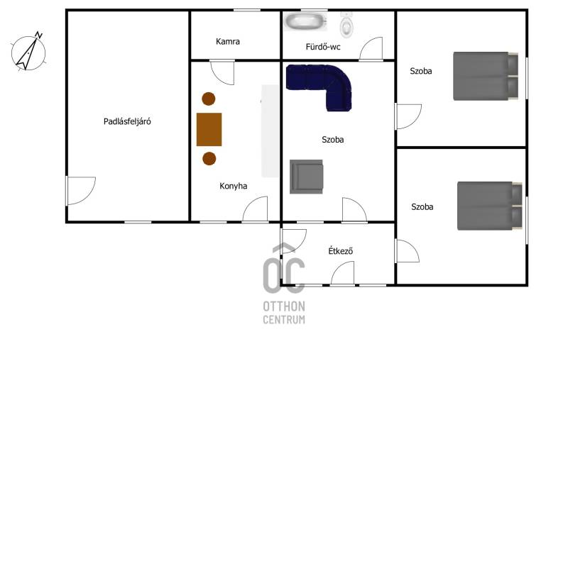
Alapterület: 100 m2
Állapota: felújítást igényel
Építés éve: 1960
Fűtés: gáz (konvektor)
Felszereltség: -
Szobák száma: 3
Szintek száma: -
Telekterület: 3 125 m2
Kert mérete: 3 125 m2
Erkély mérete: -
Parkolás: -
Kilátás: -
Egyéb extrák:  
-
Részletes leírás
Kedves Ügyfelünk, az ingatlanról videót is készítettünk. Ha ezt a hirdetést az Otthon Centrum weboldalán nézed, akkor a videóra a képek után tudsz kattintani. Ha egy másik weboldalon találtad ezt a hirdetést, kérlek nyisd meg az Otthon Centrum weboldalát, kattints a „Regisztrációs szám keresése” menüpontra, és írd be ezt a regisztrációs számot a keresőbe: \"H500261\". Itt meg tudod tekinteni az ingatlanról készült videót. Vagy írj nekem, és szívesen elküldöm a videót.Eladó 3125 m2-es telken fekvő, 3 szobával rendelkező ház Szedresben. Lakótere jelenleg 78 m2, de abban a helyiségben, ahol a padlásfeljáró található, további lakrész is könnyen kialakítható. Állapotát tekintve felújítandó, leendő tulajdonosai igény szerint formálhatják. Nyílászárói fából vannak, a fűtésről gázkonvektorok gondoskodnak. Garázs, pince, présház, füstölő, veteményes is található a telken.Előnyei közül kiemelném:- alaprajza sokféleképpen alakítható- csendes, de központi környéken található- a nagy terület számos lehetőséget rejt magábanAjánlom családoknak vagy családot tervező fiataloknak.Ha Ön is lát benne fantáziát, hívjon fel, és nézzük meg együtt!Regisztrációs szám: H500261Teljes körű pénzügyi megoldások ügyintézése díjmentesen.Minden élethelyzetre végzünk pénzügyi elemzést - ha vásárolni szeretne, segítünk, hogy ezt a legjobbfeltételek mellett tegye; ha eladni szeretné ingatlanát, nézzük meg, hátha érdemes meglévő hitelétátváltani.Keressen bizalommal, szakértők vagyunk!
Hirdető adatai
Hirdető neve: Otthon Centrum
Kapcsolattartó: Puskorics Ramóna
Hirdető telefonszáma: +36 70 388 5286
Honlap: -