Pest megye, Vácrátót
 

Ingatlan adatai
Irányár: 74 850 000 Ft
Típus: ház
Kategória: eladó
Alapterület: 78 m2
Állapota: új
Építés éve: 2025
Fűtés: -
Felszereltség: -
Szobák száma: 4
Szintek száma: -
Telekterület: 450 m2
Kert mérete: 450 m2
Erkély mérete: 15 m2
Parkolás: -
Kilátás: -
Egyéb extrák:  
-
Részletes leírás
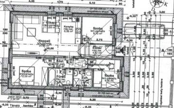
Vácrátóton ÚJ ÉPÍTÉSŰ IKERHÁZ eladó a természethez közel!A FÖLDSZINTES ikerház Nappali+3 hálószoba, fürdőszoba, háztartási helyiség, kamra, előszoba, külön mellékhelyiséggel épül meg, gépkocsi beálló hellyel.A ház modern energetikai elvárásoknak megfelelően épül, hagyományos tégla falazattal, pénztára barát hőszivattyús fűtésrendszerrel, és kényelmes padlófűtéssel, elektromos redőny előkészítéssel...A Burkolatok, szaniterek, belső ajtók igény szerint még választhatók!Redőny előkészítés, elektromos kiállással, napelem előkészítéssel, valamint H tarifás villany órával, terhelhető betonfödémmel a tárolás megkönnyítése érdekében.Az építő referenciákkal rendelkezik, nagy múltú kivitelező, korrekt minőségi munkával, rugalmasan szerződhet!CSALÁDI OTTHONTEREMTÉSI KEDVEZMÉNY (CSOK) és az ILLETÉKKEDVEZMÉNYEK igénybe vehetők!Ha erre a nyugodt, természetközeli helyre álmodta meg új otthontát 2-3 gyermekkel akár, ez az otthon biztonságos környezetet biztosít.További információk, műszaki adatok miatt keressen! Hívását akár szombaton is fogadom!
Hirdető adatai
Hirdető neve: Otthon Centrum
Kapcsolattartó: Mózes Adrienne
Hirdető telefonszáma: +36 70 388 6211
Honlap: -