Pest megye, Szentendre
 

Ingatlan adatai
Irányár: 157 900 000 Ft
Típus: ház
Kategória: eladó
Alapterület: 130 m2
Állapota: -
Építés éve: 2019
Fűtés: -
Felszereltség: -
Szobák száma: 3
Szintek száma: -
Telekterület: 990 m2
Kert mérete: 990 m2
Erkély mérete: 50 m2
Parkolás: -
Kilátás: -
Egyéb extrák:  
-
Részletes leírás
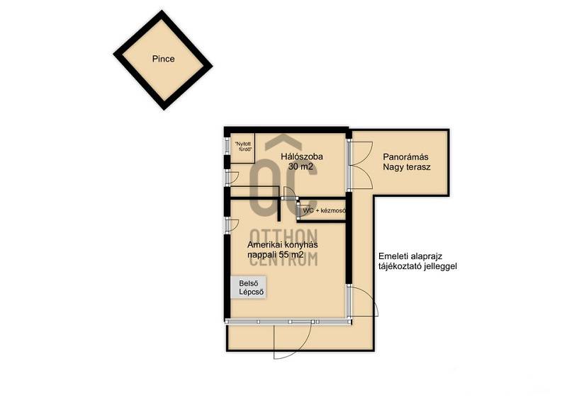
Örökpanoráma, modern otthon, kivételes lokáció – SzentendrénSzentendrén, a Pap-szigettel szemben, a hegyoldalban, páratlan dunai panorámával eladó egy 130 m²-es, kétszintes családi ház, amely ritka harmóniát kínál a természet közelsége és a korszerű otthon kényelme között.Néhány főbb paraméter a teljesség igénye nélkül:- Az emeleti nappaliból egészen Békásmegyertől Újpesten és Dunakeszin át Gödig ellátni – a látvány minden évszakban lenyűgöző, a reggeli kávé vagy az esti borozás itt igazi élmény.- Az ingatlan jelenlegi elrendezése: nappali + 2 szoba, de bontás nélkül is könnyedén 4 szobássá alakítható, így ideális választás lehet kisebb családnak, vagy akár otthoni irodát keresőknek is.- A ház 2023-ra teljeskörű felújításon esett át: megtörtént a villamos- és vízhálózat cseréje, az alapterület hivatalos bővítése, és kiépítésre került egy 7,8 kW-os napelemes rendszer is. Az ingatlan érvényes használatbavételi engedéllyel rendelkezik.- Az ingatlan fűtését korszerű, elektromos padlófűtés biztosítja ( helyiségenként külön termosztáttal szabályozható), amelyet a napelemes rendszer egészít ki – így a ház energiaellátása részben megújuló forrásból történik. A megfelelő szigetelésnek és az energiatakarékos megoldásoknak köszönhetően a rezsiköltség rendkívül alacsony, a fűtés pedig fenntarthatóvá válik, fosszilis energiaforrások használata nélkül.- A hűtésről modern, hűtő-fűtő klímaberendezés gondoskodik.- A ház szigetelése kiemelkedő: 15 cm grafitos külső szigetelés, 15 cm kőzetgyapotos tető- és födémszigetelés, háromrétegű hőszigetelt műanyag nyílászárók.- Energetikailag: A++- A melegvizet két Ariston okosbojler szolgáltatja, a rendszer a jövőben napkollektorral is bővíthető, az előkészítés megtörtént. Az emeleti WC-ben bidézuhany és piszoár is helyet kapott.- Az ingatlan riasztóval védett, távfelügyelethez csatlakoztatva. Korszerű szúnyoghálóval szerelt ablakok, optikai internet és 5G elérhetőség is rendelkezésre áll.- Az elektromos tolókapun keresztül az udvari beállóhoz jutunk, ahol 4-5 autó parkolása is kényelmesen megoldható. A házhoz egy száraz, körülbelül 20 m²-es pince és egy különálló szerszámtároló is tartozik.Az ingatlan ára: 157,9 millió forint, amely tartalmazza a beépített bútorokat és a teljes konyhai gépesítést.Ez az ingatlan kizárólag az Otthon Centrum egyedi konstrukciójú „Felező portfóliójában” található meg.Megtekintés kizárólag előzetes egyeztetéssel lehetséges. A panoráma és a miliő megéri a felvezető utat – de ezt személyesen fogja igazán érezni. Várom a hívását! Amennyiben nem tudom felvenni, visszahívom, amint lehetőségem adódik.Ez az ingatlan a \"Felező csomag\" megbízási portfólióhoz tartozik. Részletek az Otthon Centrum weboldalán.
Hirdető adatai
Hirdető neve: Otthon Centrum
Kapcsolattartó: Otthon Centrum
Hirdető telefonszáma: -
Honlap: -