Pest megye, Délegyháza
 

Ingatlan adatai
Irányár: 149 000 000 Ft
Típus: ház
Kategória: eladó
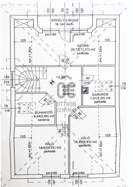
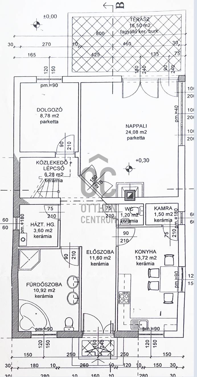
Alapterület: 156 m2
Állapota: -
Építés éve: 2010
Fűtés: gáz (cirko)
Felszereltség: -
Szobák száma: 5
Szintek száma: -
Telekterület: 354 m2
Kert mérete: 354 m2
Erkély mérete: 30 m2
Parkolás: -
Kilátás: -
Egyéb extrák:  
-
Részletes leírás
Délegyháza, tavakkal körbezárt, csendes, hangulatos sétányán eladó egy 2007-es építésű 2 szintes családi ház.A házata a kivitelező saját magának, magas minőségben építette és a jelenlegi tulajdonos az elmúlt évben felújította, itt még a tisztasági festésre sincs szükségA ház nappalija és ahhoz tartozó terasz a tóra enged kilátást ahova a délkeleti fekvés maitt a kora reggeli és a délelőtt nap süt.A kertből, közvetlenül a tópartra tudunk lemenni, ahol a házhoz tartozó stégen piheneht a leendő tulajdonos vagy idulhat horgászni.A teljesen körbejárható ház udvarán dupla fedett kocsibeálló és további szabadtéri parkolási lehetőség van. A földszinten találhat az élettér a 24 m2-es nappalival, konyha-étkezővel, fürdővel és egy dolgozoószobával.Az emelet foglalja a magába a lakóteret 3 hálóval, fürdővel és egy hatalmas gardróbbal.Azoknak ajánlom a házat, akik a fővároshoz közel, de mégs extrém nyugodt környezetben, vízparton szeretnének élni, egy magas minőségű, igazi pihenést biztosító családi házban.További információkért és megtekintés miatt keressen, akár hétvégén is.Családi ház délegyházán, vízparti ház, vízparti családi ház, vízparti ház délegyházán, családi ház pest vármegyében
Hirdető adatai
Hirdető neve: Otthon Centrum
Kapcsolattartó: Molnár Tamás
Hirdető telefonszáma: +36 70 716 9401
Honlap: -