Heves megye, Poroszló
 

Ingatlan adatai
Irányár: 39 000 000 Ft
Típus: ház
Kategória: eladó
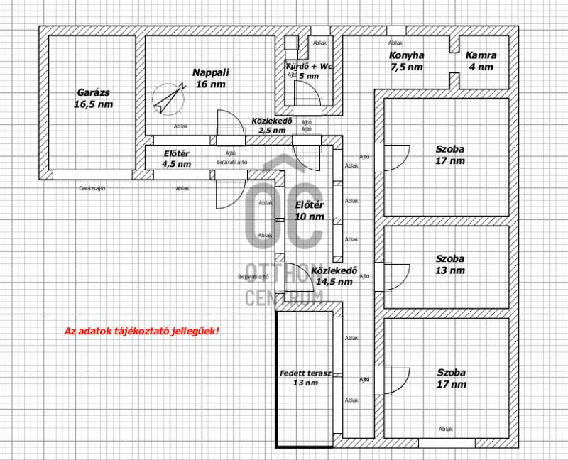
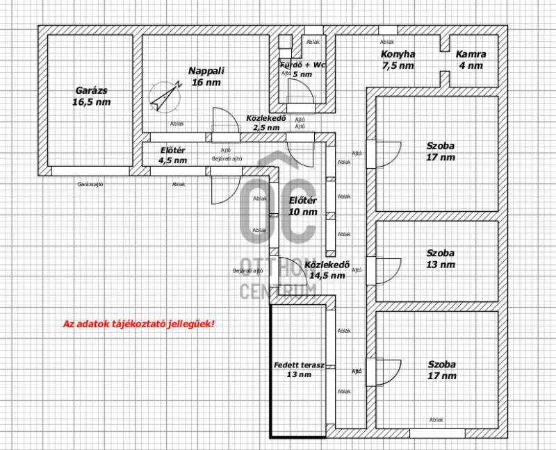
Alapterület: 118 m2
Állapota: -
Építés éve: 1950
Fűtés: egyéb
Felszereltség: -
Szobák száma: 3
Szintek száma: -
Telekterület: 563 m2
Kert mérete: 563 m2
Erkély mérete: -
Parkolás: -
Kilátás: -
Egyéb extrák:  
-
Részletes leírás
A Tisza-tó kivételes adottságú településén, Poroszlón ELADÓ egy teljes kapacitással, és stabil, kialakult vendégkörrel jelenleg vendégházként működő családi ház kiváló ár-érték arányban és tele rengeteg /akár üzleti/ lehetőséggel!Poroszló magáról a Tisza-tóról és arról az Ökocentrumról is ismert, amely ezt az Európa-szerte egyedülálló állat és növényvilágot hivatott bemutatni. Ha járt márt ott visszavágyik, ha még nem ki ne hagyja! Ezen a településen minden, ami pihenés, minden, ami kikapcsolódás (szabadstrand, horgászat, csónakázás, jet-ski, SUP, stb.) elérhető, nem beszélve az ország legjobb kerékpáros útvonaláról, amely itt halad keresztül!A település központi, mégis csendes, aszfaltozott utcájában, könnyen karban tartható, 563 nm-es telekre épült a 118 nm-es, jó szerkezeti és esztétikai állapotú, összközműves ház, vegyes falazattal, cserép héjazattal. A kellően világos közlekedő három kényelmes méretű szobát, tágas nappalit, fürdőszobát, előteret és egy jól felszerelt konyhát köt össze. A ház kellemes hőmérsékletéért klímák és vegyes tüzelésű kályha felelnek!Kialakításának köszönhetően kiválóan alkalmas mind üzleti szempontból /vendégházként néhány év alatt visszahozza az árát!/, mind pedig kisebb-nagyobb családok /akár 2 generáció/ számára is!A házhoz tartozik garázs, egy hatalmas /100 nm-es/ melléképület, hangulatos terasz és a családi-baráti összejövetelek központi helyszíne, a fedett kerti sütögető is!!! Akár az üzleti lehetőségek, akár a családi otthon kényelme van a fókuszban, itt megtalálja a számításait!Amennyiben felkeltettem az érdeklődését, NE HABOZZON, hívjon még ma és nézzük meg együtt!Teljes körű hitel ügyintézéssel és az ingatlan adásvételéhez szükséges ügyvédi háttérrel is állok a vevőjelöltek rendelkezésére.További információért és a megtekintésért kérem hívjon és hivatkozzon a H502762-es megbízási számra!
Hirdető adatai
Hirdető neve: Otthon Centrum
Kapcsolattartó: Varga József István
Hirdető telefonszáma: +36 70 716 9406
Honlap: -