Budapest, XIV.kerület
 

Ingatlan adatai
Irányár: 380 000 000 Ft
Típus: ház
Kategória: eladó
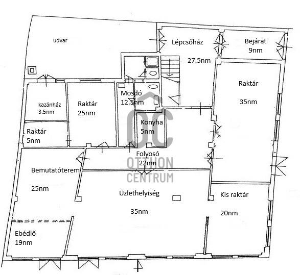
Alapterület: 478 m2
Állapota: -
Építés éve: 1938
Fűtés: gáz (cirko)
Felszereltség: -
Szobák száma: 13
Szintek száma: -
Telekterület: 546 m2
Kert mérete: 546 m2
Erkély mérete: 35 m2
Parkolás: -
Kilátás: -
Egyéb extrák:  
-
Részletes leírás
Egy hatalmas lehetőségeket rejtő ingatlant ajánlok Alsórákos kedvelt részén.Tökéletes választás lehet befektetőknek vagy összeköltöző családoknak. De ha Ön csak plusz bevételhez szeretne jutni a saját lakhelyén, azt is megteheti, mivel az ingatlanban óriási a potenciál. Itt szárnyalhat a képzelete. Nagyon világos, rentgeteg ablakkal teli az épület. Több oldalról benapozott, zöld növényekkel tarkított.13+1 szobás az ingatlan, amely két szinten helyezkedik el.Romantikus sütögető rész található a földszinten és egy hangulatos erkély az emeleten.Ha zongorázni vagy biliárdozni lenne kedve valakinek nagyobb társaság előtt, itt azt is megteheti, hiszen a tér adott hozzá.Közlekedési szempontól is ideális, mert több jármű is megáll a környéken.Villamos: 3,62,62A,69Busz: 32,5,973,973ATrollibusz: 82 és 82AA közelben minden megtalálható: közért, gyógyszertár, orvosi rendelő, pékség, optika, piac és cukrászda.
Hirdető adatai
Hirdető neve: Otthon Centrum
Kapcsolattartó: Méreg Noémi
Hirdető telefonszáma: +36 70 461 9376
Honlap: -