|
Részletes leírás
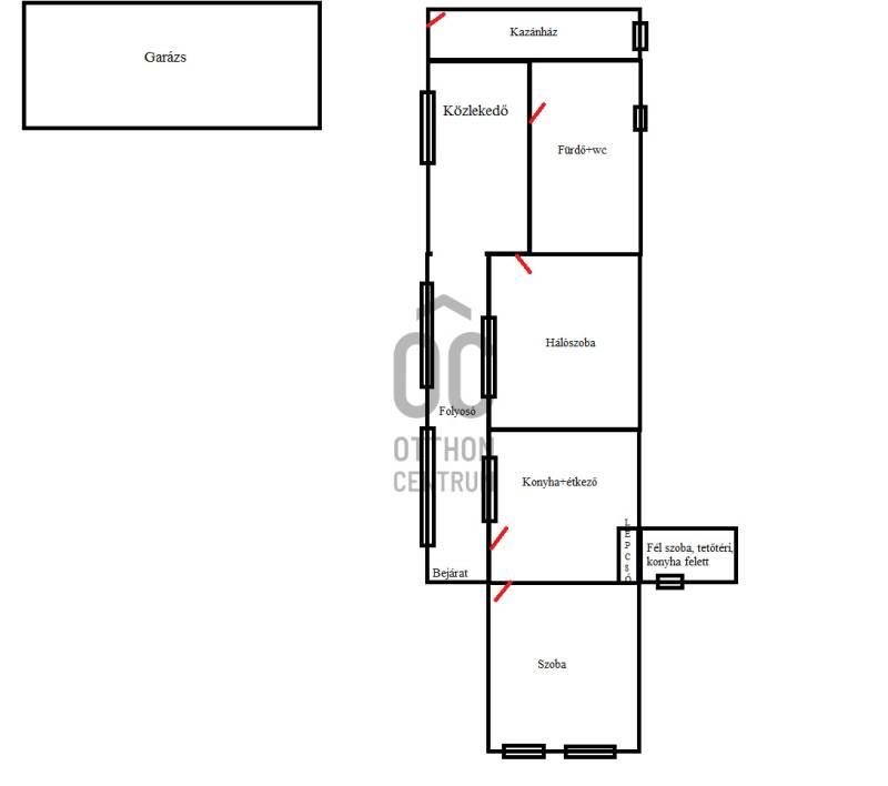
Kiemelt megbízás irodánk kínálatában !Fedezze fel ezt a kivételes lehetőséget Tapolca szívében.Az ingatlan főbb jellemzői :- 69 nm hasznos alapterület- 344 nm telek - 2 tágas szoba , konyha , étkező , fürdőszoba ,wc- a konyha felett egy félszoba - fűtése vegyes tüzelésű kazánnal megoldott- a ház beszigetelése egy éve készült el , illetve a nyílászárók is ki lettek cserélve - belvárosában helyezkedik el, ideális választás mindenki számára, aki értékeli a központi elhelyezkedést és a kényelmet. - A garázsban két autó kényelmesen elfér, így a parkolás sosem jelenthet problémát.Az ingatlan tehermentes, ideális választás családoknak, fiatal pároknak vagy akár befektetőknek, akik a felkapott környék előnyeit szeretnék kihasználni. A környék kiváló adottságokkal rendelkezik: a közlekedési lehetőségek kiemelkedőek, hiszen az ingatlan könnyen megközelíthető autóval és tömegközlekedéssel egyaránt. A város központja mindössze néhány perc sétára található, ahol számos bolt, étterem és szolgáltatás várja. A csendes utcák és a barátságos szomszédság garantálják a nyugodt életkörülményeket, miközben a város pezsgő élete is elérhető közelségben van. Kérdéseivel és érdeklődésével bizalommal fordulhat hozzánk, hiszen célunk, hogy Ön megtalálja álmai otthonát vagy befektetési lehetőségét. Előre egyeztetett időpontban szívesen megmutatom . |
|