Pest megye, Őrbottyán
 

Ingatlan adatai
Irányár: 107 000 000 Ft
Típus: ház
Kategória: eladó
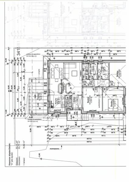
Alapterület: 95 m2
Állapota: új
Építés éve: 2025
Fűtés: -
Felszereltség: -
Szobák száma: 4
Szintek száma: -
Telekterület: 380 m2
Kert mérete: 380 m2
Erkély mérete: 17 m2
Parkolás: -
Kilátás: -
Egyéb extrák:  
-
Részletes leírás
Fedezze fel ezt a kivételes lehetőséget Őrbottyán szívében, ahol az új, modern otthon és a természet közelsége tökéletes harmóniában találkozik! Ez az impozáns, 115 négyzetméteres ház ideális választás mindazok számára, akik tágas, világos életteret keresnek. A 380 négyzetméteres telek lehetőséget biztosít egy gyönyörű kert kialakítására, ahol a szabadban eltöltött idő valódi élvezetté válik. A házban négy szoba található, így bőséges hely áll rendelkezésre a család számára, vagy akár vendégek fogadására is. Műszaki tartalom:- klíma előkészítés- 3 rétegű fehér nyílászárók - hőszivattyús fűtés- padlófűtés- 30 cm-es tégla-12 cm-es szigeteléssel ÁTADÁS: 2026 március. Az ingatlan állapota kiváló, a hőszivattyús fűtés pedig nemcsak környezetbarát, hanem gazdaságos megoldást is kínál. A nappali tágas, világos teret biztosít, ahol a család minden tagja kényelmesen eltöltheti idejét. A lakás kertkapcsolatos, így a teraszról közvetlenül a szabadba léphet, ahol a friss levegő és a természet közelsége garantált. A terasz mérete 16,82 négyzetméter, ideális helyszín baráti összejövetelekhez vagy egy nyugodt reggeli kávézáshoz. Az ingatlan kisállattal is költözhető, így nemcsak az emberek, hanem a házi kedvencek is otthonra lelhetnek benne. Őrbottyán csendes, biztonságos környéke tökéletes otthont biztosít családok számára. A városban található iskolák és óvodák egyaránt könnyen megközelíthetők, így a gyermekek számára ideális tanulási környezetet kínálnak. A közlekedés is kiemelkedő, hiszen a közeli buszmegállók és a vasútállomás révén Budapest belvárosa gyorsan elérhető, így a városi élet nyújtotta előnyöket is élvezheti anélkül, hogy lemondana a vidéki élet nyugalmáról. Az ingatlan elhelyezkedése lehetővé teszi a természetjárás szerelmesei számára, hogy felfedezzék a környék csodás kirándulóhelyeit, miközben a város nyújtotta kényelmi szolgáltatások is könnyen elérhetők. Ez az otthon nem csupán egy ingatlan, hanem egy életstílus, amely a modern élet igényeit és a természet szeretetét ötvözi. Ha bármilyen kérdése merülne fel az ingatlannal vagy a vásárlási folyamattal kapcsolatban, ne habozzon bizalommal keresni. Örömmel állok rendelkezésére, hogy segítsek Önnek megtalálni álmai otthonát!CSOK+ kedvezményes hitel felvételéhez ingyenesen támogatást nyújtunk.
Hirdető adatai
Hirdető neve: Otthon Centrum
Kapcsolattartó: Bohus László
Hirdető telefonszáma: +36 70 412 4106
Honlap: -