Jász-Nagykun-Szolnok megye, Tiszafüred
 

Ingatlan adatai
Irányár: 65 000 000 Ft
Típus: ház
Kategória: eladó
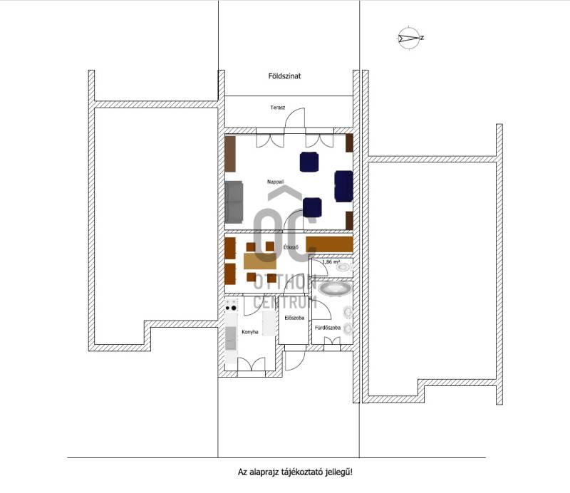
Alapterület: 120 m2
Állapota: -
Építés éve: 1988
Fűtés: gáz (cirko)
Felszereltség: -
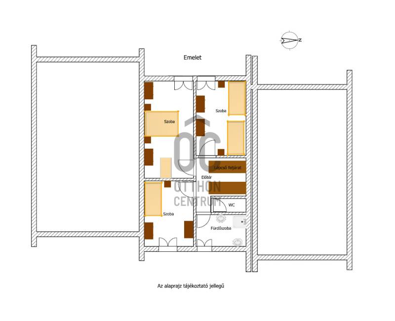
Szobák száma: 4
Szintek száma: -
Telekterület: 244 m2
Kert mérete: 244 m2
Erkély mérete: 13 m2
Parkolás: -
Kilátás: -
Egyéb extrák:  
-
Részletes leírás
Az ingatlan Jász-Nagykun-Szolnok vármegye egyik legdinamikusabban fejlődő városában, Tiszafüreden található, közel a szabadstrandhoz, de mégis csendes környéken.-A 120 m²-es, háromszintes lakás egy hétlakásos sorház része, saját kerttel. -A ház bejáratát rózsabokor díszíti, de új tulajdonosa kedve szerint alakíthatja az előkertet.-Az otthon három szoba, nappali, két fürdőszoba, külön WC, étkező és konyha helyiségekből áll. -Az alagsorban két gépkocsi tárolására alkalmas garázs, egy tágas kamra, kazánház, valamint egy műhely kialakítására is alkalmas helyiség kapott helyet.-A téglaépítésű lakásban padlófűtés működik, amelyet gázkazán lát el. Az ablakok kétrétegű üvegezéssel ellátottak. Kiváló elhelyezkedés és infrastruktúra.Több üzlet (SPAR, Penny, LIDL), illetve gyógyszertár, fizikoterápia, és strand is pár perc séta távolságban található .Tiszafüredet a 33-as és 34-es főút köti össze az ország vérkeringésével, az M3-as autópálya csupán 30 km-re található. A távolsági busz- és vasúti közlekedés kiváló. A város gazdag infrastruktúrával rendelkezik:-Bölcsőde, óvoda, általános iskola, gimnázium, szakképző iskola-Több gyógyszertár, szakrendelés, fizioterápia-Bevásárlási lehetőségek: TESCO, LIDL, SPAR, Penny-Benzinkutak: MOL, SHELL, OILA település turisztikai központként is egyre népszerűbb:-Teljesen körbebiciklizhető Tisza-tó, új kerékpárút Poroszlóig-Megújuló termálstrand, szabadvizi strand, kerékpáros központ-Kiváló éttermek és szolgáltatások a közelbenTovábbi előnyök:-Díjmentes jogi tanácsadás-Ingyenes, bankfüggetlen hitelközvetítés-Hétvégén is elérhető értékesítési ügyelet!
Hirdető adatai
Hirdető neve: Otthon Centrum
Kapcsolattartó: Lang Zsolt
Hirdető telefonszáma: +36 70 412 3651
Honlap: -