Budapest, V.kerület
 

Ingatlan adatai
Irányár: 1 453 920 000 Ft
Típus: lakás (újépítésű)
Kategória: eladó
Alapterület: 681 m2
Állapota: új
Építés éve: 2023
Fűtés: gáz (cirko)
Felszereltség: -
Szobák száma: 25
Szintek száma: -
Telekterület: -
Kert mérete: -
Erkély mérete: -
Parkolás: -
Kilátás: utcai
Egyéb extrák:  
-
Részletes leírás
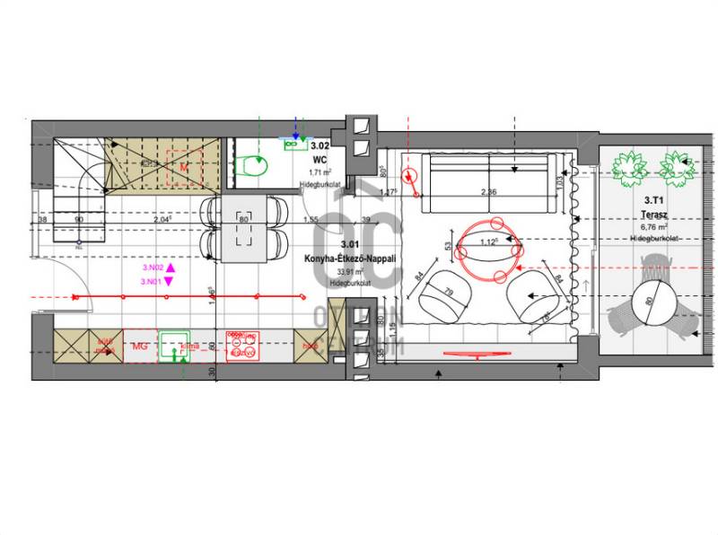
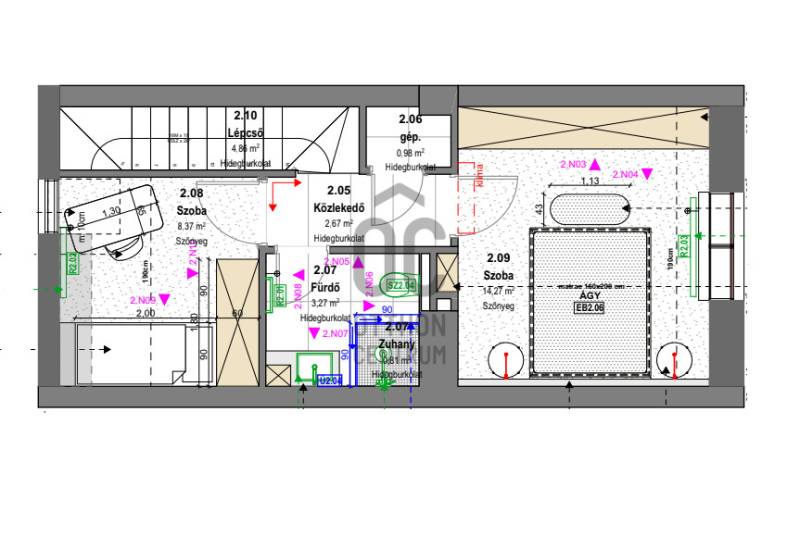
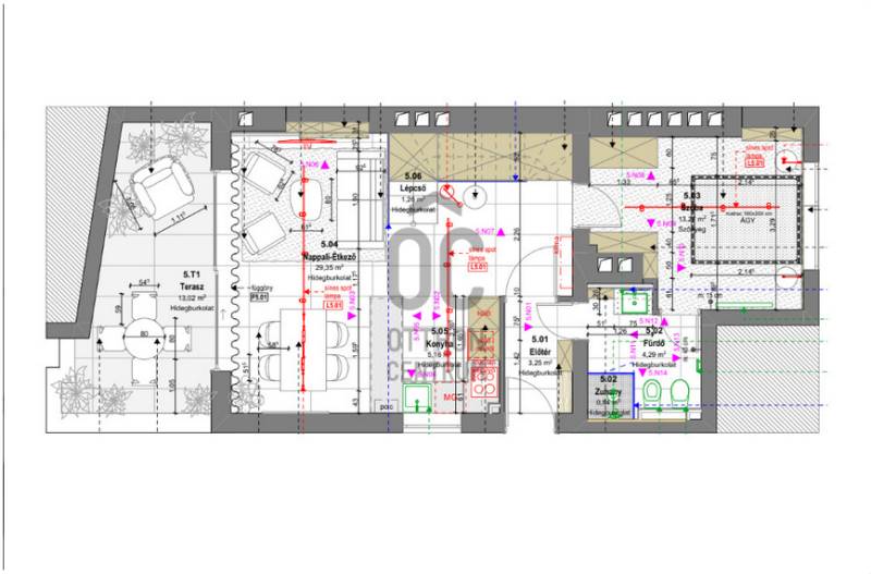
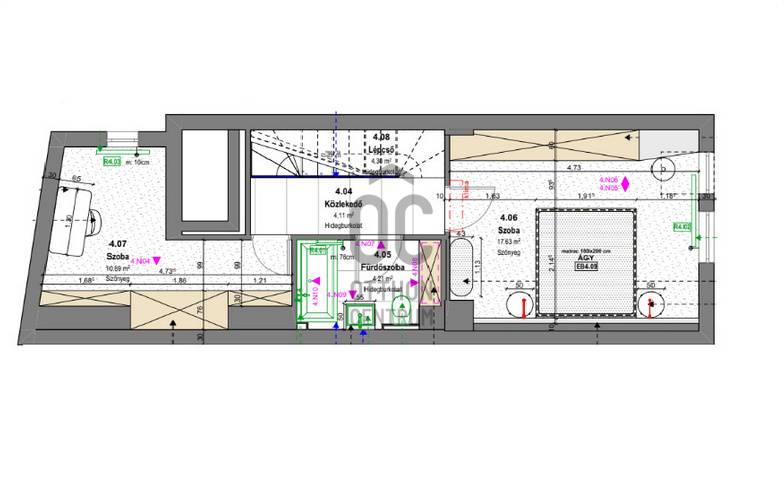
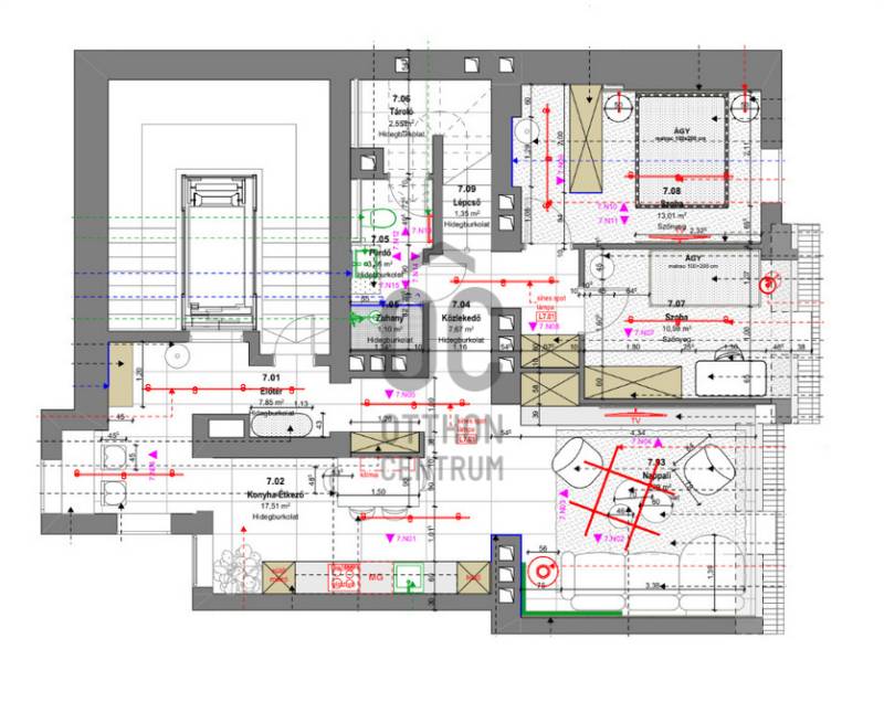
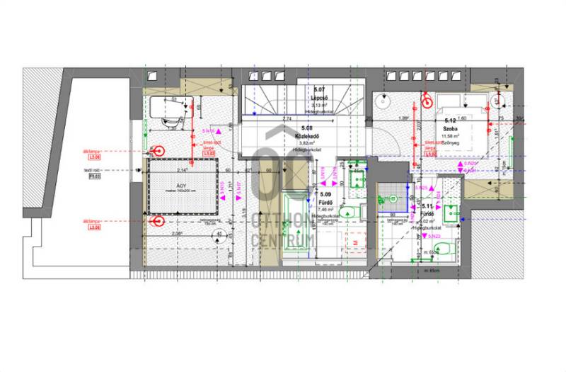
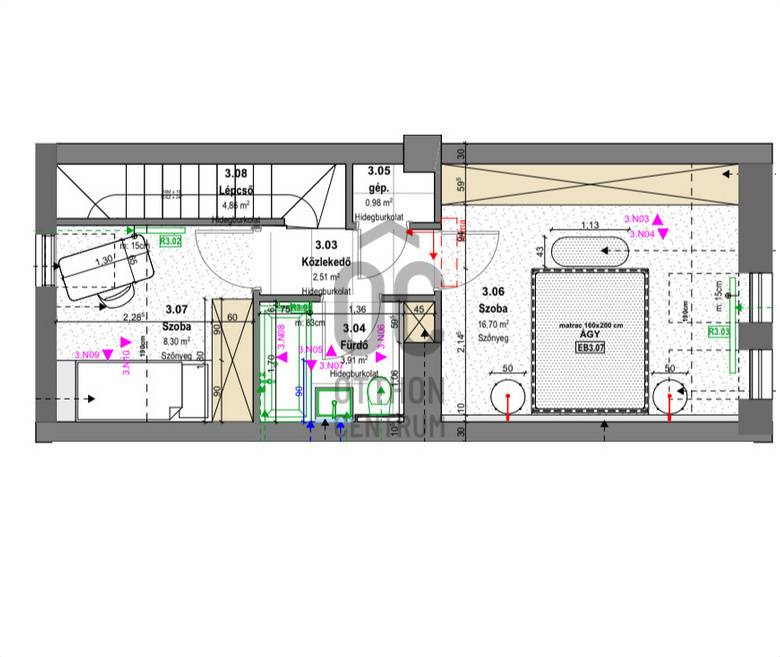
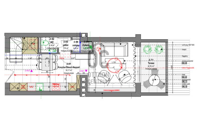
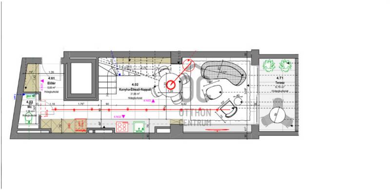
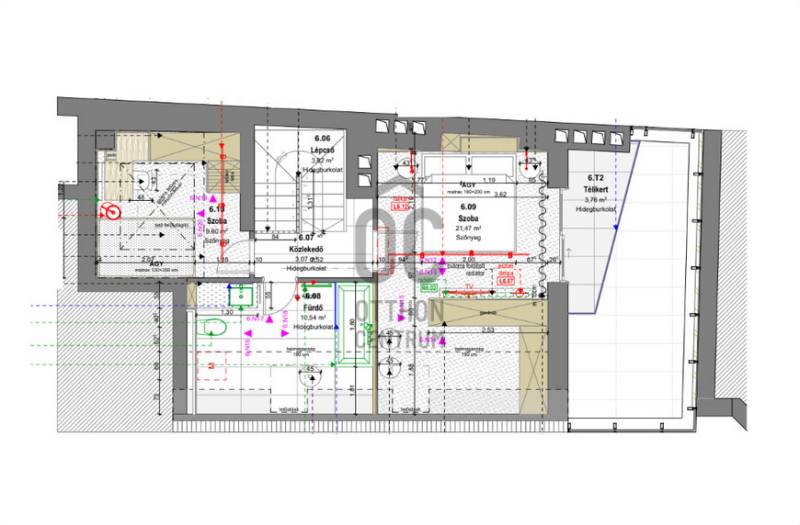
Az ingatlan nemcsak lakásonként, hanem teljes projektként is megvásárolható, így befektetők, ingatlanfejlesztők számára különösen kedvező konstrukciót kínál.Projekt bemutatásaEgy történelmi épület tetőterének beépítésével összesen 7 exkluzív lakás került kialakításra a belváros egyik legszebb macskaköves utcájában.Lakások kialakítása:- Gondosan megtervezett, modern belső terek- Látványos belmagasság és hatalmas üvegfelületek a természetes fény maximalizálása érdekében- Belső kétszintes lakások szintenkénti mosdóval - Az alsó szinten a nappali és konyha kapott helyet +mosdóval- Felső szinten elszeparáltan a hálószobák és fürdőszoba található- A legtöbb lakás saját erkéllyel vagy terasszal rendelkezikMűszaki tartalomról néhány pont: - Bosch elektromos kazán- Split klíma- Háromrétegű nyílászárók- Mágnes záras ajtók- Prémium minőségű burkolatok és szaniterekLokáció:A lakás közvetlen közelében az Egyetem tér, a Váci utca, a Vásárcsarnok, és a Duna-part.Számtalan étterem, kávézó, és bár, valamint bevásárlási lehetőség található karnyújtásnyira az ajtón kilépve.A környék infrastrukturálisan kiemelkedő, gazdag világi és történelmi látnivalókban, mint például múzeumok, színházak, nagykövetségek és luxusüzletek. Emellett számos iskola, kávézó és étterem is megtalálható a közelben. A Veres Pálné utca környéke Budapest belvárosának egyik legvonzóbb része, ahol a történelmi atmoszféra harmonikusan ötvöződik a modern városi élettel.A közlekedés kiváló: a metró és buszjáratok segítségével gyorsan és kényelmesen elérhető a város bármely pontja.
Hirdető adatai
Hirdető neve: Otthon Centrum
Kapcsolattartó: Arany Bálint
Hirdető telefonszáma: +36 70 388 6116
Honlap: -