Zala megye, Hévíz
 

Ingatlan adatai
Irányár: 43 500 000 Ft
Típus: nyaraló
Kategória: eladó
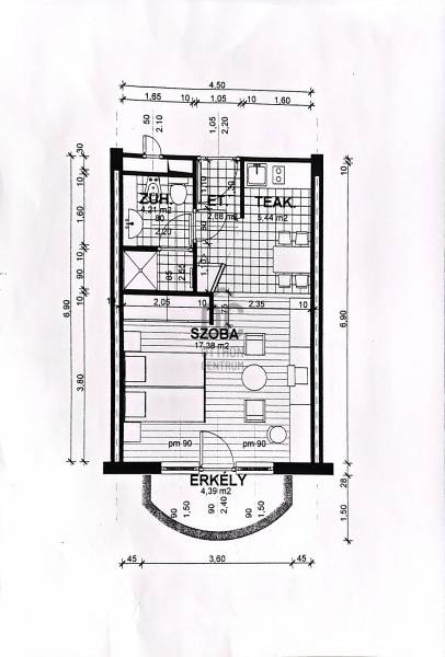
Alapterület: 32 m2
Állapota: -
Építés éve: 2001
Fűtés: házközponti fűtés
Felszereltség: -
Szobák száma: 1
Szintek száma: -
Telekterület: -
Kert mérete: -
Erkély mérete: 2 m2
Parkolás: -
Kilátás: utcai
Egyéb extrák:  
-
Részletes leírás
Az ingatlan főbb jellemzői:- az apartman a hévízi Palace Hotel**** 1. emeletén található - a társasházi albetét nettó alapterülete: 31,73 m2- erkély mérete: 1,5 m2- saját wellness tulajdoni hányad- ingyenes wellness használat- kedvezményes teremgarázs és étterem használati jog- központi, belvárosi elhelyezkedés- saját célra, vagy akár befektetésnek is kiváló a visszabérlési opció miatt Ha az ingatlan felkeltette érdeklődését, keressen bizalommal!Az adatok kizárólag a megbízóink által rendelkezésünkre bocsátott információkon alapulnak. Fentiekre tekintettel az adatok teljességéért, helyességéért és aktualitásáért nem vállalunk felelősséget. Az árváltozás, adatmódosítás és közbeni értékesítés jogát fenntartjuk, mindezekért jogi felelősséget nem áll módunkban vállalni.
Hirdető adatai
Hirdető neve: Otthon Centrum
Kapcsolattartó: Horváth Anita
Hirdető telefonszáma: +36 70 412 3361
Honlap: -