Budapest, III.kerület
 

Ingatlan adatai
Irányár: 75 990 000 Ft
Típus: lakás (tégla)
Kategória: eladó
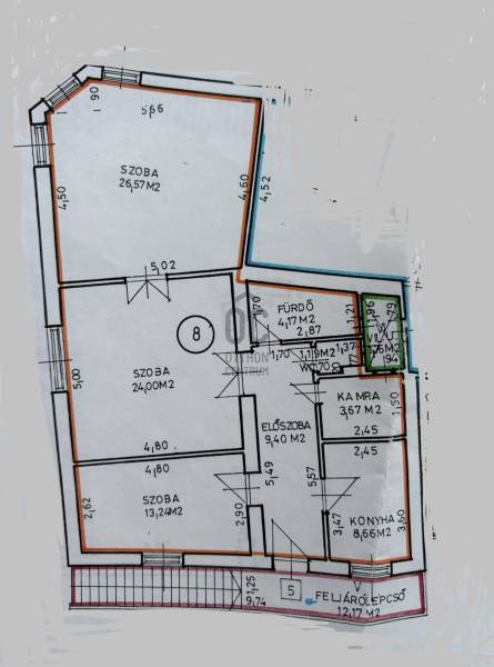
Alapterület: 91 m2
Állapota: felújítást igényel
Építés éve: 1920
Fűtés: -
Felszereltség: -
Szobák száma: 3
Szintek száma: -
Telekterület: -
Kert mérete: -
Erkély mérete: -
Parkolás: -
Kilátás: utcai
Egyéb extrák:  
-
Részletes leírás
Óbuda szívében kínálunk egy olyan ingatlant, amely nem titkoltan projektnek született, és azoknak nyújt ideális alapot, akik nem félnek a teljes átalakítástól az egyedi igényeik megvalósítása érdekében. Ha Ön látja a lehetőséget ott is, ahol más még csak a feladatot, és a városi pezsgést a Duna közelségével ötvözné, akkor ez az ajánlat Önnek szól!A Lakás JellemzőiEz a 91 négyzetméteres, délkeleti tájolású lakás rendkívül tágas elrendezésével hívja fel magára a figyelmet: a 3 szoba, konyha, fürdőszoba, külön WC és kamra kiváló alaprajzi elrendezést biztosít. Fontos tudni, hogy az ingatlan teljes körű felújítást igényel, a jelenlegi konvektoros és cserépkályhás fűtés korszerűsítése már az új tulajdonos feladata lesz. Cserébe viszont a saját ízlése szerinti energetikai megoldásokat építheti ki, sőt, a tetőtér beépítési lehetőségével tovább növelheti az életteret.Tisztában kell lenni azzal, hogy az épület egy forgalmas főút mellett fekszik, ami városi alapzajjal jár. Ez azonban egy áthidalható kompromisszum: a felújítás során beépített korszerű, hangszigetelt nyílászárókkal a lakás belső terei teljesen csendessé és nyugodttá varázsolhatók, így a központi elhelyezkedés előnyei élvezhetők.A Társasház és ExtrákA lakás egy mindössze 4 lakásos társasházban található, ami a nagyvárosi környezet ellenére is barátságos, családias lakóközösséget és biztonságos légkört jelent. Az ingatlanhoz két olyan kiegészítő is tartozik, ami ezen a környéken igazi kincs: egy saját autóbeálló az udvarban, valamint egy tágas, 20 négyzetméteres pincetároló, amely bőséges helyet biztosít mindannak, amit nem szeretne a lakótérben tartani.A Környék ElőnyeiAz elhelyezkedés stratégiai: a Dunapart mindössze 150 méterre található, így a reggeli futás vagy az esti Duna-parti séta a napi rutin része lehet. A környék infrastruktúrája hibátlan: a HÉV, a buszok és villamosok közelsége miatt a közlekedés rendkívül gyors, Budapest bármely pontja könnyedén elérhető. Itt a kertvárosi hangulat és a lüktető városi élet egyszerre van jelen.AjánlásEz az ingatlan azoknak szól, akik hajlandóak megkötni a szükséges kompromisszumokat egy kiváló lokációért és a későbbi értéknövekedésért cserébe. Ez nem csupán egy lakás, hanem egy befektetés a jövőbe, ahol a felújítás után egy modern, csendes és értékes otthon tulajdonosa lehet. Amennyiben Ön látja a fantáziát egy saját képre formálható óbudai ingatlanban, kérem, keressen bizalommal a részletekért!Ez az ingatlan a \"Hűség csomag\" megbízási portfólióhoz tartozik. Részletek az Otthon Centrum weboldalán.
Hirdető adatai
Hirdető neve: Otthon Centrum
Kapcsolattartó: Komlós Zoltán András
Hirdető telefonszáma: +36 70 412 3876
Honlap: -