Baranya megye, Pécs
 

Ingatlan adatai
Irányár: 55 000 000 Ft
Típus: lakás (újépítésű)
Kategória: eladó
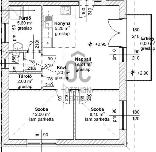
Alapterület: 54 m2
Állapota: új
Építés éve: 2026
Fűtés: -
Felszereltség: -
Szobák száma: 3
Szintek száma: -
Telekterület: -
Kert mérete: -
Erkély mérete: 6 m2
Parkolás: -
Kilátás: udvari
Egyéb extrák:  
-
Részletes leírás
Az első közös otthon nem csak négy fal.Ez az a hely, ahol reggelek indulnak, esték összebújással végződnek, és a jövőtök lépésről lépésre formálódik.Pécs szívében, egy csendes, biztonságos környéken található ez az 54,4 m²-es, új építésű lakás,praktikus, nappali, 2 háló elrendezéssel, amely ideális teret ad a közös élethez és a saját pillanatokhoz is.Az lakás épül..2026. decemberében már a tietek lehet..A korszerű hőszivattyús fűtés kényelmet és alacsony rezsiköltséget biztosít – így több marad közös élményekre.A 6 m²-es erkély tökéletes helyszín reggeli kávékhoz, esti beszélgetésekhez, csendes megállásokhoz a rohanó hétköznapokban.A közeli parkok, zöld területek és Pécs pezsgő kulturális élete egyszerre nyújtanak nyugalmat és inspirációt.Ha egy olyan otthont kerestek, ahol nem csak élni, hanem együtt tervezni is lehet, ez a lakás rátok vár. Keressetek bizalommal, és nézzétek meg személyesen az első közös otthonotokat!
Hirdető adatai
Hirdető neve: Otthon Centrum
Kapcsolattartó: Bayerné Erős Brigitta
Hirdető telefonszáma: +36 70 412 3411
Honlap: -