Pest megye, Budakeszi
Szanatórium köz 

Ingatlan adatai
Irányár: 169 000 000 Ft
Típus: ház
Kategória: eladó
Alapterület: 240 m2
Állapota: felújítást igényel
Építés éve: 1980
Fűtés: -
Felszereltség: -
Szobák száma: 5
Szintek száma: -
Telekterület: 1 003 m2
Kert mérete: 1 003 m2
Erkély mérete: -
Parkolás: -
Kilátás: -
Egyéb extrák:  
-
Részletes leírás
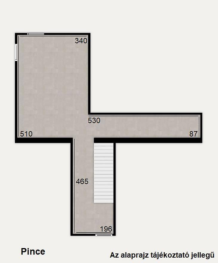
Igazi különlegesség kizárólag irodánk kínálatában!Budakeszi határán, zöldövezeti, csendes zsákutcában, 1003 nm-es telken fekvő önálló családi ház. Az épület az utca utolsó és egyben legintimebb háza.Az ingatlan az 1980-as években épült, alapterülete 127 nm. Állapotát tekintve teljeskörűen felújítandó. A földszinten (bruttó: 127 nm) egy tágas, közel 6 m-es csúcsmagassággal rendelkező, 35 nm-es nappali, egy 18 nm-es konyha, egy 28 nm-es szoba, egy 15 nm-es télikert és egy 30 nm-es dupla garázs található.Az emeleti szinten (bruttó: 75 nm + 22 nm terasz) 3 szeparált hálószoba, fürdő, közlekedő és egy 22 nm-es terasz kapott helyet. Innen közelíthetjük meg a tetőtéri szintet, ahol 2 helyiség került kialakításra.A ház egy 31 nm-es, ablakos alagsori szinttel is rendelkezik, mely igény szerint mosókonyhaként vagy tárolóként is használható.Az épületet nagyméretű kert öleli körbe, 4 égtáj irányába tekint, fő frontjai Dk.-i, Dny.-i és Ény.-i irányba néznek. Lokáció: Természetközeli elhelyezkedése miatt kedvelt lakóhely családosok részére. A Budakeszi Vadaspark mindössze 15 perc sétára található. Tömegközlekedés: 5 percen belül elérhető a 22, 22A és a 222-es illetve a 188E busz megállója.Jöjjön el és tekintse meg mielőbb!
Hirdető adatai
Hirdető neve: MPD Hungary Kft.
Kapcsolattartó: Agenzia Monteverde Kft.
Hirdető telefonszáma: +36705158697
Honlap: -