Budapest, II.kerület
Felhévíz 

Ingatlan adatai
Irányár: 169 000 000 Ft
Típus: lakás (tégla)
Kategória: eladó
Alapterület: 101 m2
Állapota: -
Építés éve: 1920
Fűtés: gáz (cirko)
Felszereltség: -
Szobák száma: 3
Szintek száma: -
Telekterület: -
Kert mérete: -
Erkély mérete: -
Parkolás: -
Kilátás: kertre néző
Egyéb extrák:  
-
Részletes leírás
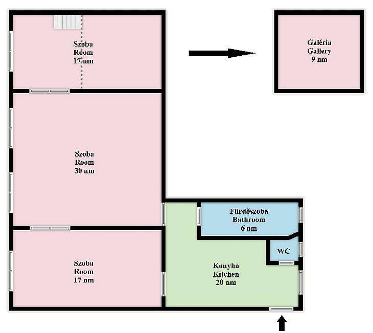
Világos, tágas otthon a Frankel Leó út sétáló szakaszán, parkra néző kilátássalEladó egy 101 nm-es, jó állapotú lakás a Frankel Leó út közkedvelt, sétáló szakaszán, amely közvetlenül a nemrég teljesen megújított parkra néz. Az ingatlan különlegessége, hogy az egyik szobában egy 10 nm-es galéria is helyet kapott, amely remekül használható hálóként, dolgozószobaként vagy akár olvasósarokként.A lakás egy liftes, igényesen karbantartott társasházban található, amelynek belső felújítása nemrég fejeződött be, így a ház közös terei is rendezettek és esztétikusak. A lakás állapota jó, azonnal költözhető, ugyanakkor kiváló alapot nyújt egyéni igények szerinti továbbalakításhoz is.Az ingatlan használati megosztásos, azonban fontos kiemelni, hogy mindkét lakásnak ugyanaz a tulajdonosa, és mindkettő eladó – így akár egyben is megvásárolhatók, ami ritka lehetőség ezen a környéken. Ez ideális választás lehet nagyobb családnak, többgenerációs együttélésre, vagy befektetők számára is.Kiváló lokáció, nyugodt, zöld környezet, mégis minden karnyújtásnyira – ez a lakás igazi bel-budai ritkaság.
Hirdető adatai
Hirdető neve: MPD Hungary Kft.
Kapcsolattartó: La Cittá dell Acqua Kft.
Hirdető telefonszáma: +36704244380
Honlap: -