Budapest, IX.kerület
Haller utca 

Ingatlan adatai
Irányár: 58 600 000 Ft
Típus: iroda
Kategória: eladó
Alapterület: 62 m2
Állapota: -
Építés éve: 2017
Fűtés: -
Felszereltség: -
Szobák száma: -
Szintek száma: -
Telekterület: -
Kert mérete: -
Erkély mérete: -
Parkolás: -
Kilátás: -
Egyéb extrák:  
-
Részletes leírás
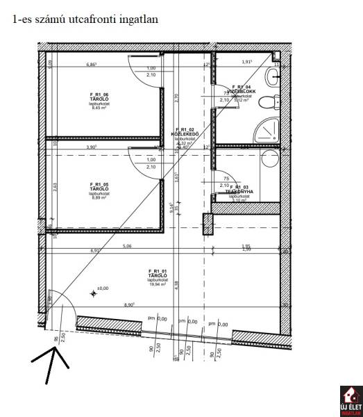
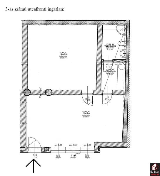
A 9. kerületben, a Haller utca és a Telepy utca találkozásánál, egy 2017-es építésű (de jogilag új építésű), 5 emeletes, SZIGETELT, liftes épületben eladómég 2 db UTCAFRONTI, ÜVEGPORTÁLOS IRODA/üzlethelyiség.Mindkettő 62 m2. Ezek m2 ára 945.000 Ft + áfa.Azaz nettó 58,6 M Ft, vagyis bruttó 74,4 M Ft.(Az ár 27% áfát tartalmaz).Mindkét ingatlan tágas térre néz, a Telepy utca és a Haller utca találkozásánál lévő kis parkosított részre.Az épületben eladó lakások is vannak. A 80 db lakásból még néhány 1 szobás lakás aktuális. (5 %-os áfát tartalmaz).Mindegyik frissen FELÚJÍTVA vásárolható meg. AZ ÖN ÍZLÉSE SZERINT kerül felújításra.(Az elmúlt 8 évben albérletbe voltak kiadva.)A fűtés házközponti, radiátorokon keresztül ad meleget, és a vízmelegítést is a központi kazán végzi.AZ ÁR A FRISSEN FELÚJÍTOTT INGATLANRA ÉRTENDŐ.A Nagyvárad téri metró 5-8 perc sétára van. Ugyanígy közel vannak az orvosi egyetem, a közszolgálati egyetem a Semmelweis kórház.Ha érdekli, akkor hívjon akár az esti órákban, vagy akár hétvégén is!
Hirdető adatai
Hirdető neve: Új Élet Ingatlan
Kapcsolattartó: Barsi Judit
Hirdető telefonszáma: +36306910408
Honlap: -