Pest megye, Halásztelek
 

Ingatlan adatai
Irányár: 124 900 000 Ft
Típus: ház
Kategória: eladó
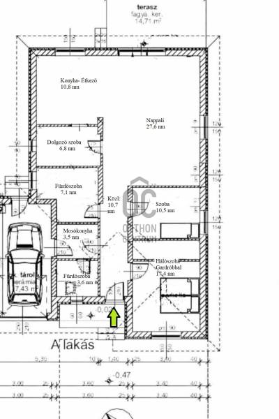
Alapterület: 115 m2
Állapota: -
Építés éve: 2019
Fűtés: gáz (cirko)
Felszereltség: -
Szobák száma: 4
Szintek száma: -
Telekterület: 480 m2
Kert mérete: 480 m2
Erkély mérete: 15 m2
Parkolás: -
Kilátás: -
Egyéb extrák:  
-
Részletes leírás
Fedezze fel ezt a kivételes lehetőséget Halásztelken, ahol a modern életvitel és a nyugalom találkozik!Ez a használt, de kiváló állapotú garázzsal érintkező ikerházfél ideális választás lehet családoknak vagy befektetőknek, akik értékes ingatlant keresnek.Kérem ismerje meg főbb jellemzőit:- 2019-ben épült- 480 nm telek tartozik hozzá- 115 nm-es- terasz 15 nm-es, téliesített- 17 nm-es garázsa egy autó számára biztosít férő helyet- telken még min. 3 autó parkolni tud- a kerti tároló (6 nm) a vételár részét képezi- fúrt kút az udvaronElosztása:Amerikai konyhás nappali2 hálószoba (egyik saját gardróbbal rendelkezik)1 dolgozó szoba2 fürdőszobamosókonyhaközlekedőgarázsMűszaki jellemzők:- falazat: tégla- fűtés: gázcirkó, radiátoros hőleadással- héjazat: Leier betoncserép- 10 cm-es szigeteléssel ellátott- 32A réz villanyhálózat- szúnyoghálós, műanyag nyílászárók- elektromos kapu és garázskapuEgyéb:- Klimatizált- Konyhabútor a vételár részét képezi, gépesítéssel együtt- bútorok, kerti játszótér alku tárgyát képezikKözlekedés:3 percre található a buszmegállóEz a ház nem csupán egy ingatlan, hanem egy lehetőség arra, hogy egy igazán otthonos, kényelmes és praktikus életteret teremtsen magának és családjának.Amennyiben felkeltette érdeklődését ez a remek ajánlat, ne habozzon kapcsolatba lépni velem!Kérdéseivel bizalommal kereshet, szívesen állok rendelkezésére, hogy segítsek Önnek a legjobb döntés meghozatalában.
Hirdető adatai
Hirdető neve: Otthon Centrum
Kapcsolattartó: Szabó Tünde
Hirdető telefonszáma: +36 70 469 3446
Honlap: -