Pest megye, Gödöllő
Gödöllő 

Ingatlan adatai
Irányár: 149 900 000 Ft
Típus: ház
Kategória: eladó
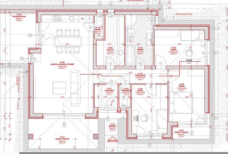
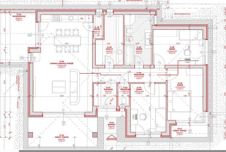
Alapterület: 145 m2
Állapota: új
Építés éve: 2026
Fűtés: egyéb
Felszereltség: -
Szobák száma: 4
Szintek száma: -
Telekterület: 550 m2
Kert mérete: 550 m2
Erkély mérete: -
Parkolás: -
Kilátás: kertre néző
Egyéb extrák:  
-
Részletes leírás
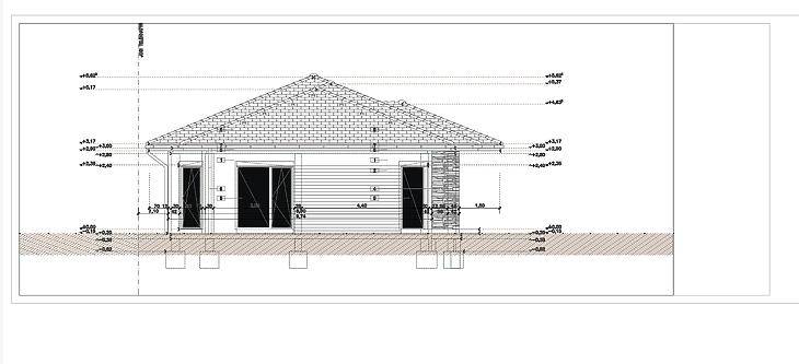
Új építésű kulcsrakész lakás Gödöllőn – magas műszaki tartalommal!Gödöllőn kínálunk eladásra egy új építésű 145 négyzetméteres, földszintes lakás, 550 négyzetméter telekkel, amely modern kialakításával, minőségi anyaghasználatával és energiatakarékos megoldásaival tökéletes választás.Főbb jellemzők:Falazat:30 cm vastag csiszolt Porotherm tégla biztosítja a kiváló hő- és hangszigetelést.Külső nyílászárók:Öt légkamrás műanyag ablakok háromrétegű hőszigetelt üvegezéssel.Hőszigetelés és homlokzat:12 cm vastag grafitos dryvit rendszer, nemes vakolattal ellátva.Külső teraszok Hideg burkolat 6500 Ft/nm.Belső falazat:10 cm-es tégla válaszfalak Burkolatok:A belső burkolatok teljes mértékben a vevő választása szerint kerülnek kivitelezésre.Beltéri ajtók:60.000 Ft//db értékű.Fürdőszobai felszereltség (terv szerint):Mosdó: 15.000 Ft/dbCsaptelepek: 12.500 Ft/dbKád: 50.000 Ft lábbalWC: 16.500 Ft/db öblítő rendszerrel (ülőke nélkül)Kádtöltő, zuhanyfej, egyéb szerelvények az alapárban!Fűtés és meleg víz:Korszerű Atlantic Loria 8kW hőszivattyú, beépített meleg víz-tárolóval, valamint padlófűtés az egész lakásban.Riasztó és klímaberendezés elektromos előkészítése.Kialakítás:Amerikai konyhás nappali + étkező, 3 szoba, háztartási helyiség, fürdő + mellékhelyiség, előszoba, 2 db fedett terasz, nyári konyha.Környék: Gödöllő csendes mellékutcájában található. Közelben számos bevásárlási lehetőség, gyógyszertár, játszótér, edzőterem. Az M3-as autópálya pár perc alatt közelíthető meg. Közelben 14, 24, 45, 4, 4A, 2, 2A, 402 buszjáratok érhetők el.FINANSZÍROZÁS:Az ingatlan banki finanszírozással is megvásárolható, melyben irodánk ingyenes tanácsadással áll rendelkezésükre!IRÁNYÁR: 149,9 M Ft. VEVŐINK RÉSZÉRE A KÖZVETÍTÉS DÍJTALANA hirdetésben szereplő adatok tájékoztató jellegűek.
Hirdető adatai
Hirdető neve: MPD Hungary Kft.
Kapcsolattartó: Vestarion Kft.
Hirdető telefonszáma: +36203112124
Honlap: -