Fejér megye, Aba
 

Ingatlan adatai
Irányár: 58 900 000 Ft
Típus: ház
Kategória: eladó
Alapterület: 66 m2
Állapota: új
Építés éve: 2026
Fűtés: -
Felszereltség: -
Szobák száma: 3
Szintek száma: -
Telekterület: 409 m2
Kert mérete: 409 m2
Erkély mérete: 14 m2
Parkolás: -
Kilátás: -
Egyéb extrák:  
-
Részletes leírás
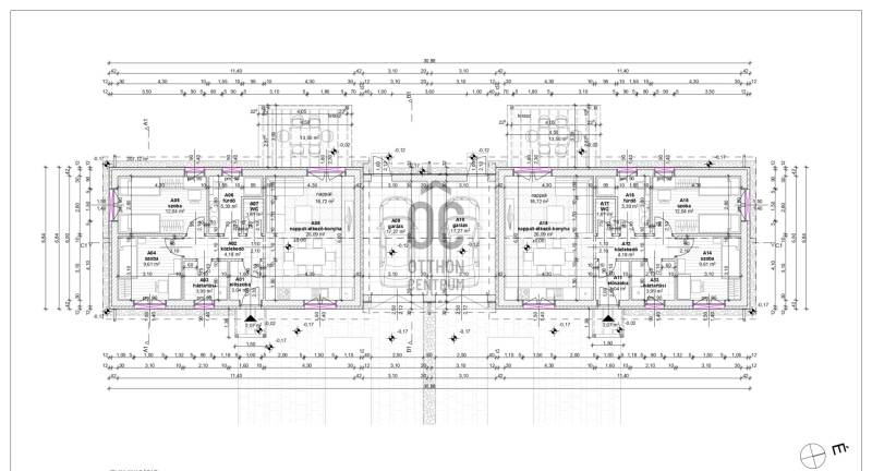
Székesfehérvár közvetlen közelében, az autópályától 8 percre található Belsőbárándon, rendkívül csendes környezetben épülő 65,96 nm hasznos lakóterű modern, téglából épült lakóház eladó!Rövid műszaki leírás: 1. ház (1. épület)* Telek:409 nm* Amerikai konyhás nappali étkezővel, 2 szoba, fürdőszoba, 2 illemhelység, terasz + 1 beállásos garázs* 65,96 nm hasznos alapterület + 13,5 nm-es pergolával fedett terasz* A ház 30 cm vastag Leier 30 N+F tégla falazattal, 15 cm homlokzati hőszigeteléssel, 12 cm aljzatszigeteléssel, 30 cm üveggyapot padlásszigeteléssel épül* Fűtés: padlófűtés, az épület hőellátása levegő-víz hőszivattyúról történik* Tető 30 fokos nyeregtetős, fa födémes, beton tetőcseréppel fedett* Igény esetén napelem rendszer is telepíthető* Fehér 3 rétegű műanyag nyílászárók kerülnek beépítésre, redőnnyel, szúnyoghálóval felszerelve* Elektromos hálózat 3*25A* Burkolat: konyhában, közlekedő részen, fürdőszobában, mellékhelyiségben járólap, nappaliban, szobákban laminált parketta, terasz térkövezett* Épület körül kavics járda szegélykő, külső terasz térkő burkolat.Belsőbáránd közelében halad el a 63-as főút, így a falurész könnyen megközelíthető Székesfehérvár és Sárbogárd irányából is.A részletekkel kapcsolatban keressen bizalommal!Ha a vásárláshoz a jelenlegi ingatlana eladására van szükség, akkor abban is szívesen együttműködöm Önnel!Amennyiben hitelre van szüksége, az Otthon Centrum az ország egyik legnagyobb és legmegbízhatóbb hitelközvetítőjeként, teljes körű és díjmentes hitel ügyintézéssel áll ügyfelei rendelkezésére.
Hirdető adatai
Hirdető neve: Otthon Centrum
Kapcsolattartó: Zóka Erika
Hirdető telefonszáma: +36 70 388 6161
Honlap: -