Budapest, IX.kerület
 

Ingatlan adatai
Irányár: 185 325 000 Ft
Típus: lakás (újépítésű)
Kategória: eladó
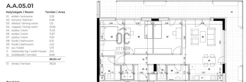
Alapterület: 87 m2
Állapota: új
Építés éve: 2025
Fűtés: -
Felszereltség: -
Szobák száma: 4
Szintek száma: -
Telekterület: -
Kert mérete: -
Erkély mérete: 37 m2
Parkolás: -
Kilátás: kertre néző
Egyéb extrák:  
-
Részletes leírás
AZONNAL KÖLTÖZHETŐ | ZÖLD KERTRE NÉZBudapest IX. kerületében, a Metrodom Green lakóparkban eladó egy kiváló elosztású, nappali + 3 hálószobás, sarokteraszos otthon, amely csendes, zöld belső kertre néz, délnyugati tájolású, világos és élhető.Főbb jellemzők:- nappali + 3 külön nyíló hálószoba- 2 fürdőszoba- külön háztartási helyiség- sarokterasz- azonnal költözhető- kiváló alaprajz, jól szeparált privát terekPROJEKT – ZÖLD OÁZIS A BELVÁROS KÖZELÉBENEgy modern, már ÁTADOTT, prémium lakópark, ahol a városi élet kényelme és a természet közelsége találkozik. A gazdag növényzettel kialakított belső kert, a zöld homlokzatok és a közösségi terek valódi nyugalmat adnak – miközben a belváros percek alatt elérhető.Elérhető rozsdaövezeti kedvezmény:- 5% ÁFA visszaigényelhető*- 10% foglaló – 90% fizetés 15–45 napon belül- ügyvédi díj a vételárbanÉPÜLET ÉS SZOLGÁLTATÁSOK- A modern, prémium kategóriás épület 513 lakásos, környezetbarát megoldásokkal felszerelt lakópark.A lakók kényelmét szolgálja:- zöld homlokzatok, tetőkertek, díszmedence- kávézó, fitneszterem, szauna- közösségi konyha, grill- és tetőterasz- smart app és okosotthon megoldások- elektromos alumínium redőnyök (a vételár része)-24 órás portaszolgálat, csomagpont- zárt, biztonságos lakókörnyezet- Energiatakarékos rendszerek, napelemek és korszerű gépészet gondoskodnak az alacsony rezsiről.5 OK, AMIÉRT JÓ VÁLASZTÁS✔ belváros közeli elhelyezkedés, kiváló közlekedés✔ zöld, nyugodt környezet – valódi városi oázis✔ prémium szolgáltatások egy helyen✔ alacsony fenntartási költségek✔ azonnal költözhető, bútorozott állapotFEJLESZTŐI HÁTTÉR – BIZTONSÁGOS VÁLASZTÁS- fix ár, nincs utólagos emelés- saját kivitelezés- prémium minőségű anyaghasználat- teljes körű jótállás- kedvező, rövid fizetési ütemezésKÖZLEKEDÉS- 1-es villamos a közelben- 2-es villamos a Duna-parton- 24-es villamos – Keleti pályaudvarig- éjszakai járatok (901, 908)- GreenGo, MOL Bubi, mikromobilitási pont- fedett kerékpártároló, elektromos autótöltőkEl tudod magad itt képzelni? Akkor ez a különleges lakópark épp Rád vár! Várom hívásod!* Rozsdaövezeti kedvezmény: magyar magánszemélyek a tulajdonjog bejegyzését követően a vételár 5% ÁFÁ-ját visszaigényelhetik.
Hirdető adatai
Hirdető neve: Otthon Centrum
Kapcsolattartó: Nagy Eszter Renáta
Hirdető telefonszáma: +36 70 461 9541
Honlap: -