Hajdú-Bihar megye, Debrecen
 

Ingatlan adatai
Irányár: 150 000 000 Ft
Típus: ház
Kategória: eladó
Alapterület: 150 m2
Állapota: új
Építés éve: 2026
Fűtés: -
Felszereltség: -
Szobák száma: 4
Szintek száma: -
Telekterület: 475 m2
Kert mérete: 475 m2
Erkély mérete: 83 m2
Parkolás: -
Kilátás: -
Egyéb extrák:  
-
Részletes leírás
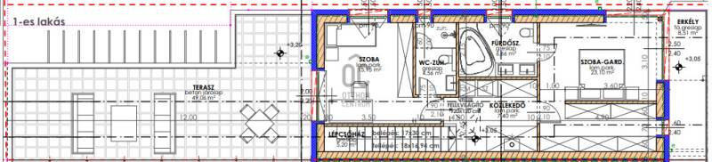
Debrecenben, a Kerekestelepen ÚJ ÉPÍTÉSŰ IKERHÁZ ELADÓ! Eladásra kínálunk Debrecen kedvelt részén, épülő, 149 m²-es, modern ikerházat 475 m²-es telekkel. A kivitelező megbízható, Debrecen környékén számos referenciával rendelkezik.Ingatlan típusa: ikerházAlapterület: telekméret 475 m2 lakóterület 149 m2Szobák száma és elrendezés:Földszint: 68,9 m2 + garázs 18 m2:előszoba (9,42 m2) konyha-étkező-nappali (43,19 m2); kamra (2,16 m2), 1 szoba (10,8 m2), WC, zuhanyzó, garázs (18 m2) található. Terasz 26 m2Emelet: (62,8 m2)1.lakás: - szoba – gardrób (23,1 m2) – fürdőszoba (6,66 m2) – közlekedő (7,4 m2)-szoba (15,15 m2) – zuhanyzós WC (4,56 m2) -lépcsőház (5,9 m2)-erkély (8,5 m2)-emeleti terasz 49 m22.lakás: - szoba (12 m2) – fürdőszoba (7,69 m2)-szoba (11,4 m2)-szoba (15,81 m2)-közlekedő (10,98 m2)-lépcsőház (5,2 m2)-erkély (8,5 m2)-emeleti terasz 49 m2Falazat: 30 cm-es N+F téglaFödém: kefni, monolit betonKülső hőszigetelés: 20 cm EPS hőszigetelésNyílászárók: 90 mm 3 rétegű hőszigetelt üvegezéssel, elektromos garázskapuEmeleti födém szigetelés: 30 cm XPS hőszigetelés PVC lemezborítássalFűtés: hőszivattyús rendszer padlófűtésselHűtés: magasoldalfal FANCOIL i (vizesrendszerű klíma)Napelem: 5 kwJárda: épület körül 80 cm szélességbenUtcai kerítés: lemezÁllapot: új építésIrányár: 150 000 000 Ft Új, energiatakarékos, prémium minőségű otthon!Az átadás dátuma a szerződést követő 3 hónap . Ügyfeleinket teljes körűen segítjük a vásárlás és eladás teljes folyamatában megbízható, díjtalan és bankfüggetlen hiteltanácsadói és kiiváló ügyvédi háttérrel.További kérdéssel, megtekintéssel kapcsolatban várom hívását a hét bármelyik napján.!
Hirdető adatai
Hirdető neve: Otthon Centrum
Kapcsolattartó: Deák Andrea
Hirdető telefonszáma: +36 70 388 5986
Honlap: -