Pest megye, Nagykovácsi
 

Ingatlan adatai
Irányár: 292 000 000 Ft
Típus: ház
Kategória: eladó
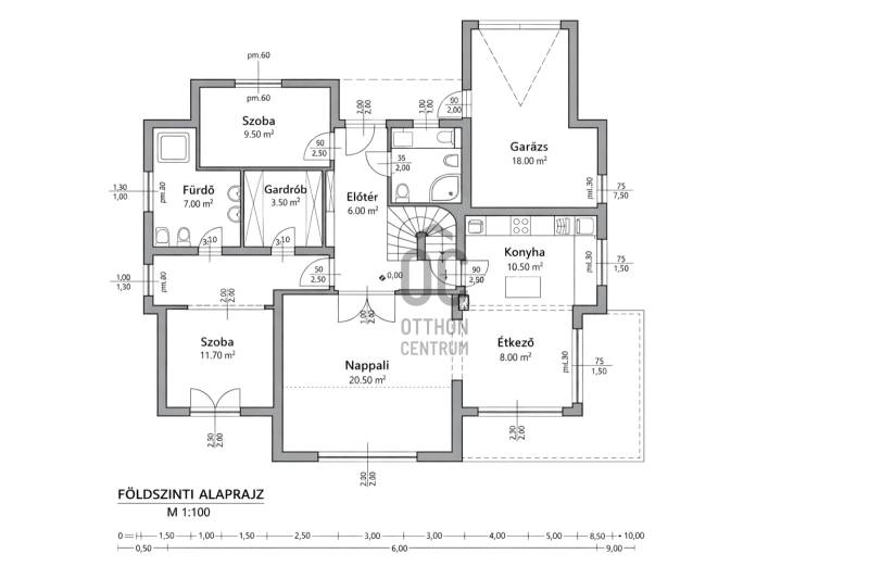
Alapterület: 209 m2
Állapota: -
Építés éve: 2010
Fűtés: gáz (cirko)
Felszereltség: -
Szobák száma: 7
Szintek száma: -
Telekterület: 987 m2
Kert mérete: 987 m2
Erkély mérete: 60 m2
Parkolás: -
Kilátás: -
Egyéb extrák:  
-
Részletes leírás
Pest vármegyében, Nagykovácsi egyik keresett, nyugodt lakóövezetében kínálunk megvételre egy 209 m² hasznos alapterületű, korszerű kialakítású családi házat, 987 m²-es, parkosított telken. Az ingatlan kiváló választás nagycsaládosok, többgenerációs együttélésben gondolkodók vagy otthoni munkavégzéshez tágas életteret igénylők számára.Ingatlan paraméterei:2 nappali, 5 külön nyíló hálószoba, 3 fürdőszoba, 32,2 m²-es, kertkapcsolatos terasz, 16 m²-es és 11,5 m²-es erkély, déli tájolás, tehermentes jogi státusz.Elrendezés és belső kialakítás:A ház átgondolt alaprajzi struktúrával rendelkezik. A két nappali elkülöníthető funkciókat tesz lehetővé: reprezentatív fogadótér, családi élettér, dolgozószoba vagy hobbihelyiség egyaránt kialakítható. Az amerikai konyhás nappali tágas, természetes fénnyel bőségesen ellátott, közvetlen kapcsolatban áll a terasszal és a kerttel. A hálószobák szeparáltan helyezkednek el, biztosítva az intimitást és a zavartalan pihenést. A három fürdőszoba kényelmes használatot garantál akár nagyobb létszámú család számára is.A déli fekvésnek köszönhetően a lakóterek egész nap világosak, energiahatékonysági szempontból is kedvező adottságúak.Műszaki tartalom: gáz cirkó fűtési rendszer, split klímaberendezés, jó műszaki és esztétikai állapot.Külső terek:A gondozott, intim kert ideális gyermekes családok számára, valamint szabadtéri pihenésre, kerti rendezvényekre. A terasz és a két erkély további használható életteret biztosít, panorámás kilátással a zöld környezetre.
Hirdető adatai
Hirdető neve: Otthon Centrum
Kapcsolattartó: Velich András
Hirdető telefonszáma: +36 70 469 3801
Honlap: -