Pest megye, Bugyi
 

Ingatlan adatai
Irányár: 250 000 000 Ft
Típus: egyéb ingatlan
Kategória: eladó
Alapterület: 240 m2
Állapota: -
Építés éve: 1960
Fűtés: -
Felszereltség: -
Szobák száma: -
Szintek száma: -
Telekterület: -
Kert mérete: -
Erkély mérete: -
Parkolás: -
Kilátás: -
Egyéb extrák:  
-
Részletes leírás
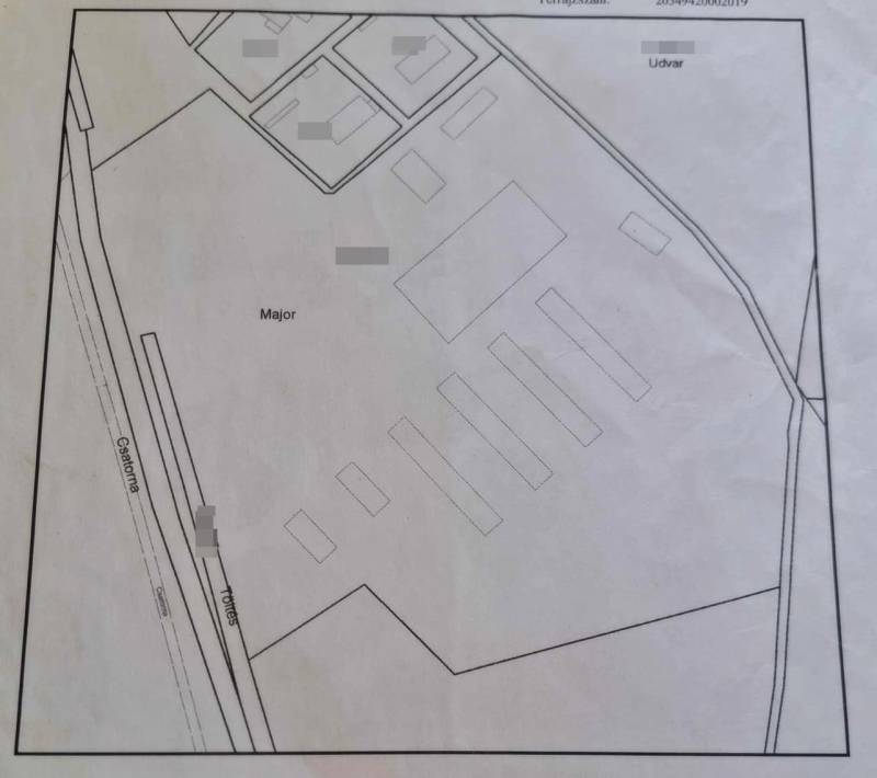
Bugyitól pár percre eladó egy több lehetőségből álló Major.Több mint 6 H területen megtalálható 3 szinten lakóépületnek kialakitható tégla építésű ház, ami szintenként 240 nm.Épületben víz,villany,zárt emésztő bevezetve..A területen több épület is megtalálhatóMagtár:750 nmTető nélküli épület:2100 nmTároló: 4 db egyenként 620 nm Tároló:3 db egyenként 310 nmEzek az épületek felújítandók..Sok lehetőséget rejt ez a Major mezőgazdasági,állattartásra,akár munkásszálló kialakítására,bármilyen tevékenységre kialakítható.Beton út vezet Bugyiról Majorig,8 perc alatt Iskola, Óvoda,vásárlási lehetőség elérhető.Akár bútorozottan,és a tárolókban elhelyezett rengeteg bütor eszközökkel együtt.Érdemes megnézni!Ha felkeltette érdeklődését kérem hívjon : O620/400-40-26 Vass Erika
Hirdető adatai
Hirdető neve: Dabas Régió
Kapcsolattartó: Vass Erika
Hirdető telefonszáma: 06204004026
Honlap: -