Budapest, VII.kerület
 

Ingatlan adatai
Irányár: 72 900 000 Ft
Típus: lakás (tégla)
Kategória: eladó
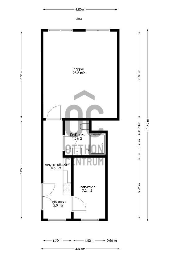
Alapterület: 45 m2
Állapota: -
Építés éve: 1910
Fűtés: gáz (cirko)
Felszereltség: -
Szobák száma: 2
Szintek száma: -
Telekterület: -
Kert mérete: -
Erkély mérete: -
Parkolás: -
Kilátás: utcai
Egyéb extrák:  
-
Részletes leírás
VII. kerület Ligetvárosi részén a Cserhát utcában az István u.-hoz közelebbi részén eladó egy 1910-es 20-as években épült jó állapotú téglaház magasföldszintjén egy 45 m2-es teljeskörűen felújított 2 szobás, világos, fiatalos lakás. A felújítás során a teljes villanyhálózat cserélve lett. Kapott FI relét és 2* 32A biztosítékot, hogy a nappaliban lévő klíma zökkenőmentesen hűtse fűtse a lakást amikor megy a sütő mosás közben.A fürdőszoba újra lett építve. A lakás vízvezetékei cserélve lettek, épített Walk-in zuhanykabin, fali Geberit wc, mosdószekrények, mosógép kiállás és elszívó ventilátor lett kialakítva. A meleg vizet villanybojler biztosítja.A konyhában magas kopásállóságú Gress burkolat, új gépesített ( beépített sütő és mikrohullámú sütő, kerámialapos tűzhely, nagy teljesítményű, kivezetett elszívó ) konyhabútor lett kialakítva, ahol a mosogatógép kiállása is ki lett alakítva. Helyett kapott egy kombinált hűtőszekrény, így az új tulajdonos \"teljesen\" felszerelt konyhával tudja birtokba venni a lakást.A melegről egy mika 4-es gázkazán gondoskodik a lakásban.A szobákban nagy kopásállóságú szallag parkettával míg az előszobában és a fürdőben járólapokkal lett burkolva a felület. Az ablakok 2 rétégű hang és hőszigetelt műanyag ablakokra lettek cserélve míg a szobákban a nyílászárók cserélve lettek beltéri karcvédett ajtókra tokkal együtt.A lakás megközelíthetősége kiváló a közeli Ötvenhatosok tere ( István utca ) 74-es és 79-es troli busz és a 30, 30A és 230-as buszok és az M2 és M4 metró Keleti PU megállóinak köszönhetően.Ne hagyja ki ezt a páratlan lehetőséget, hogy egy frissen a piacra került, stílusos otthonra tegyen szert Pest egyik legpatinásabb részén!A piacon jelenleg kevés hasonló adottságú, teljes körűen felújított és alacsonyabb áru ingatlan található a Erzsébetváros ezen területén.Célunk, hogy ügyfeleink számára a legmagasabb színvonalú, személyre szabott lakáshitel-megoldásokat nyújtsuk, maximális kényelmet és biztonságot garantálva. Bankfüggetlen hitelcentrumunk szakértői az ország összes bankjának és hitelintézetének ajánlatait versenyeztetik, díjmentesen, hogy Ön a legkedvezőbb feltételekkel juthasson lakáshitelhez. Tapasztalt munkatársaink az Ön igényeihez igazodva, előre egyeztetett időpontban, akár munkaidőn túl is rendelkezésére állnak, hogy minden kérdésére megnyugtató választ adjanak és segítsék Önt a döntésben.
Hirdető adatai
Hirdető neve: Otthon Centrum
Kapcsolattartó: Szász Endre
Hirdető telefonszáma: +36 70 469 3136
Honlap: -