Budapest, XV.kerület
Rákospalota 

Ingatlan adatai
Irányár: 39 900 000 Ft
Típus: ház
Kategória: eladó
Alapterület: 31 m2
Állapota: felújítást igényel
Építés éve: 1950
Fűtés: -
Felszereltség: -
Szobák száma: 1
Szintek száma: -
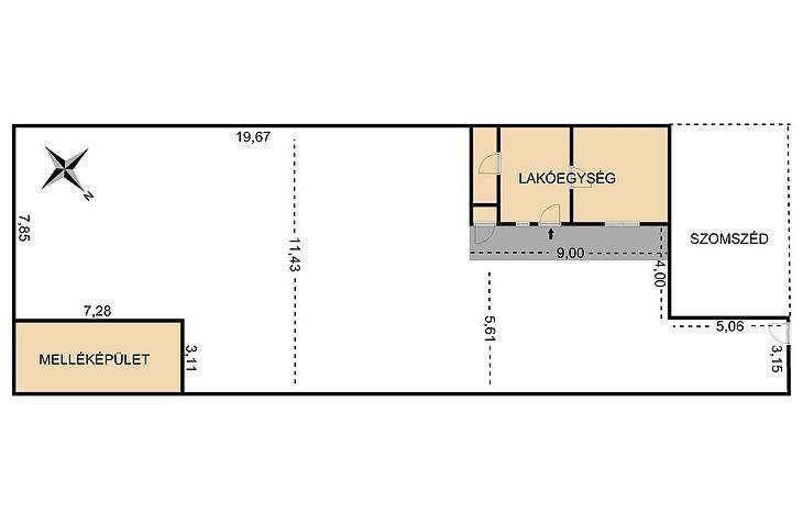
Telekterület: 350 m2
Kert mérete: 350 m2
Erkély mérete: -
Parkolás: -
Kilátás: udvari
Egyéb extrák:  
-
Részletes leírás
XV. KERÜLETBEN, RÁKOSPALOTÁN, ELADÓ 350 M2 TELKEN 31 M2 FELÚJÍTANDÓ HÁZRÉSZ 11 M2 FEDETT TERASSZALA TELEK JELLEMZŐI:A telek övezeti besorolás szerint LK-2/IK-2 kategóriában helyezkedik el. Beépíthetősége 25%, a legkisebb zöld felület aránya 55%. A legnagyobb épület magassága maximum 6,5 méter. 67,5 nm egység lehet rajta földszinten, ez akár emeletráépítéssel duplázható. Hátsó egységként a hozzá tartozó kert rész átjárásmentes.PARKOLÁS:Telken belül vagy díjmentesen a ház előtt, utcafrontonKÖZLEKEDÉS:Közelben a 231, 231B busz, néhány percre 96, 196, 196A, 296, 296A, 130 busz közlekedik.IRÁNYÁR: 39,9 M FTFINANSZÍROZÁS:Az ingatlan banki finanszírozással is megvásárolható, melyben irodánk ingyenes tanácsadással áll rendelkezésükre!VEVŐINK RÉSZÉRE A KÖZVETÍTÉS DÍJTALAN!!A hirdetésben szereplő adatok tájékoztatás jellegűek!
Hirdető adatai
Hirdető neve: MPD Hungary Kft.
Kapcsolattartó: Újhely Ingatlan Kft.
Hirdető telefonszáma: +36202885981
Honlap: -