Somogy megye, Siófok
 

Ingatlan adatai
Irányár: 320 000 000 Ft
Típus: lakás (újépítésű)
Kategória: eladó
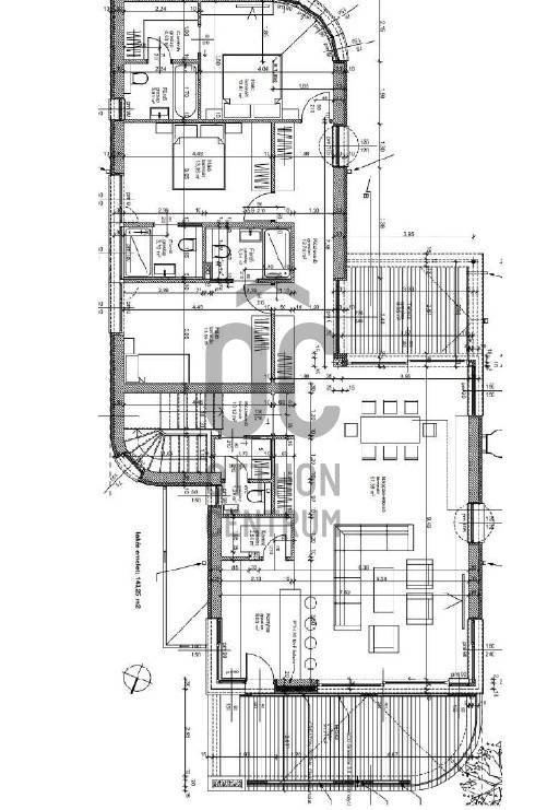
Alapterület: 143 m2
Állapota: új
Építés éve: 2026
Fűtés: -
Felszereltség: -
Szobák száma: 4
Szintek száma: -
Telekterület: -
Kert mérete: -
Erkély mérete: 30 m2
Parkolás: -
Kilátás: kertre néző
Egyéb extrák:  
-
Részletes leírás
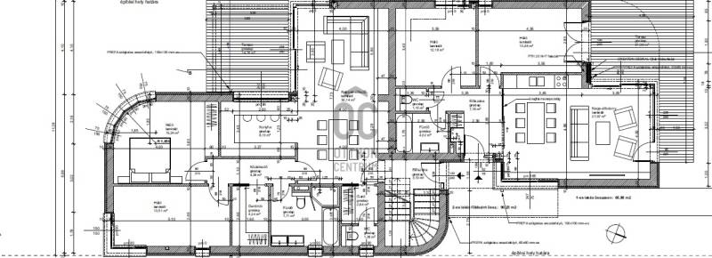
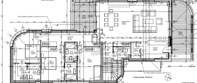
PENTHOUSE ÉLETÉRZÉS SIÓFOK ARANYPARTJÁN – PRIVÁT EMELETI LAKÁS NAGY TERASSZALA háromlakásos boutique projekt legexkluzívabb otthona ez a teljes emeleti szintet elfoglaló, 43 m²-es prémium penthouse lakás, amelyhez egy impozáns, 30 m²-es panorámás terasz tartozik.A lakás valódi ritkaság a siófoki kínálatban: nincs közvetlen szomszéd, a teljes felső szint kizárólagos használatot biztosít, így a tulajdonos maximális privát szférát és nyugodt balatoni életérzést élvezhet.A nagy üvegfelületeknek és a kiváló tájolásnak köszönhetően a belső terek egész nap világosak, miközben a terasz természetes módon meghosszabbítja az életteret. Ideális helyszín reggeli kávéhoz, naplementés vacsorákhoz vagy akár egy privát lounge kialakításához.A lakás főbb jellemzői:teljes emeleti szint – penthouse jellegű kialakítás43 m² jól átgondolt lakótér30 m²-es, tágas privát terasznagy üvegfelületek, világos enteriőrmodern, Bauhaus ihletésű építészetprémium műszaki tartalom és energiatudatos megoldásokintim, mindössze 3 lakásos lakóközösségA Balaton mindössze egy rövid sétára található, a környező fenyőfák és az Aranypart elegáns hangulata pedig egyszerre biztosít nyaralóhangulatot és időtálló befektetési értéket.Ez az otthon ideális választás azok számára, akik exkluzív balatoni második otthont, prémium nyaralót vagy kiemelkedő értékállóságú ingatlant keresnek Siófok egyik legjobb lokációjában.Tekintse meg velem!Siófok,#lakás,# penthouse,#aranypart,#Projekt bemutatásaPRÉMIUM, 3 LAKÁSOS ÚJ ÉPÍTÉSŰ PROJEKT SIÓFOK ARANYPARTJÁN – KARNYÚJTÁSNYIRA A BALATONTÓLSiófok egyik legkeresettebb részén, az Aranypart szívében, kínálunk egy exkluzív, mindössze háromlakásos, modern megjelenésű lakóépületet, ahol a nyugalom, a privát élettér és a balatoni életérzés tökéletes egyensúlyban találkozik.A kiváló adottságú telek mindössze egy háztömbnyire helyezkedik el a Balatontól, ahonnan az épületek között a vízfelület is megcsillan. A telken található nagyméretű, idősebb fenyőfák különleges hangulatot és természetközeli környezetet biztosítanak, miközben a környék infrastruktúrája és a strand közelsége egész évben értéket képvisel.A projekt főbb jellemzői:mindössze 3 lakás – intim, nyugodt lakókörnyezetmodern, Bauhaus ihletésű építészeti megjelenésnagy teraszok, privát kertekkiváló tájolás és jól használható életterektelken belüli gépkocsi-beállókprémium műszaki tartalomLakások elosztása:66 m²-es földszinti lakás + 24 m² terasz + saját kert (utcafront felé)90 m²-es földszinti lakás + 14 m² terasz + privát kert (csendes hátsó kert felé)143 m²-es emeleti penthouse lakás + 30 m² terasz, teljes emeleti szinttelA földszinti lakások külön bejárattal rendelkeznek, hasonló méretű, privát kertekkel kialakítva, így ideális választást jelentenek akár állandó otthonnak, akár nyaralónak vagy befektetésnek.Az épület letisztult, vakolt homlokzatát modern CEDRAL burkolati elemek teszik egyedivé. A teraszok nyitható pergolával készülnek, így minden évszakban élvezhető kültéri életteret biztosítanak.Modern gépészet:hőszivattyús fűtés padlófűtésselhőszivattyús hűtés oldalfali fan-coil rendszerrelhelyiségenként szabályozható komfortEz a projekt ideális azok számára, akik a Balaton közelségét, a modern építészetet és a kis lakásszám adta exkluzivitást keresik — kompromisszumok nélkül.Ez a projekt a Balaton-parti ingatlanpiac ritka kategóriáját képviseli.Prémium elhelyezkedés. Diszkrét elegancia. Valódi balatoni életminőség.Siófok Aranypart – ahol az értékálló befektetés találkozik az életminőséggel.Érdeklődés és részletes műszaki tartalom: keressen bizalommal!
Hirdető adatai
Hirdető neve: Otthon Centrum
Kapcsolattartó: Horváthné Virág Tímea
Hirdető telefonszáma: +36 70 469 3981
Honlap: -