Budapest, VI.kerület
 

Ingatlan adatai
Irányár: 399 000 000 Ft
Típus: lakás (tégla)
Kategória: eladó
Alapterület: 110 m2
Állapota: -
Építés éve: -
Fűtés: gáz (cirko)
Felszereltség: -
Szobák száma: 3
Szintek száma: -
Telekterület: -
Kert mérete: -
Erkély mérete: -
Parkolás: -
Kilátás: utcai
Egyéb extrák:  
-
Részletes leírás
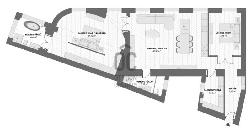
Nagypolgári elegancia modern köntösben. Ahol a történelmi miliő és kortárs luxus tökéletes harmóniában ötvöződik. Üdv itthon!RÖVID ÖSSZEFOGLALÓA VI. kerületben, a Bajcsy-Zsilinszky úton, Szent István Bazilikára néző, elegáns, liftes ház 2.emeletén kínálunk megvételre egy 110 m² alapterületű, nappali + 2 szobás, 2 fürdőszobás, kivételesen világos, luxus minőségben felújítás alatt álló lakást.KÖRNYEZETAz ingatlan elhelyezkedése valóban kiemelkedő, a belváros legjava karnyújtásnyira előttünk. Egyszerre pezsgő és elegáns a környék, történelmi hangulatával különleges atmoszférát teremt. Néhány perc sétával elérhető a Szabadság tér, a Magyar Állami Operaház, a Szent István-bazilika, vagy akár az Andrássy út.A környéken kiváló éttermek, hangulatos kávézók, borbárok, galériák és prémium üzletek sorakoznak. Egy laza séta a Duna-parton, reggeli egy kézműves pékségben, esti program az Operában – itt minden adott a minőségi városi élethez.Közlekedés szempontjából is ideális választás: M1, M2, M3 metróvonalak, 15-ös busz, 70-es és 78-as trolibusz, valamint 47–49-es villamos a közelben, autóra szinte nincs is szükség.A lokáció presztízse és értékállósága vitathatatlan.ÉPÜLETA Bajcsy-Zsilinszky út 37. szám alatti saroképület a belváros egyik karakteres, historizáló–eklektikus lakóháza, a 19–20. század fordulójáról. A Hajós utca találkozásánál álló, több irányból is hangsúlyos homlokzattal rendelkező ház városképi szempontból meghatározó ponton helyezkedik el. Az arányos, tagolt homlokzat, a díszített ablakkeretezés és a klasszikus párkányrendszer a korszak polgári építészetének jegyeit hordozza. A sarokpozíció miatt az épület nemcsak funkcionális, hanem vizuális értelemben is erős jelenléttel bír. A ház szerkezeti rendszere a korabeli bérház-építés logikáját követi: utcai és udvari szárny, belső udvarral szervezett alaprajzi struktúra. Az évek során a földszinti üzlethelyiségek a városi működéshez igazodtak, miközben a felsőbb szintek lakófunkciója megmaradt.Ez az épület stabil, belvárosi környezetben áll, kiváló közlekedési kapcsolatokkal és kulturális intézmények közelségével.Pozíciója, sarokjellege és történeti karaktere hosszú távon is értelmezhető városi értéket képvisel.LAKÁSA lakás elrendezése átgondolt és nagyvonalú. Az érkezést követően a terek természetes sorrendben nyílnak meg, a közlekedés nem elválaszt, hanem összeköt. Az alaprajz világos, jól működő rendszert alkot, amely a mindennapi használatot és a reprezentatív jelenlétet egyaránt kiszolgálja. A központi élettér a nappali–konyha–étkező egysége. Egybenyitott, mégis tagolt tér, ahol a konyha karakteres, de nem domináns, az étkező és a nappali pedig kényelmes, jól bútorozható arányokkal rendelkezik. A tér alkalmas vendégfogadásra és nyugodt mindennapokra is.A hálózóna elkülönítetten helyezkedik el. A master háló gardróbkapcsolattal és saját fürdővel alkot intim egységet, valódi visszavonulási lehetőséget adva. A vendégháló különálló, rugalmasan használható tér, dolgozószobaként vagy vendégszobaként is jól működik. A fürdők kialakítása következetes és időtálló. A master fürdő tágas, természetes kőfelületekkel, káddal és walk-in zuhannyal, míg a vendégfürdő praktikus és letisztult. A külön WC növeli a komfortot. Műszaki szempontból a lakás modern megoldásokra épül. Padló- és falfűtés biztosít egyenletes hőérzetet, a hűtő-fűtő klíma diszkréten egészíti ki a rendszert. A fa nyílászárók esztétikailag és műszakilag is magas minőséget képviselnek.Az enteriőr hangulata visszafogottan elegáns. Természetes tónusok, strukturált felületek és finoman megtervezett világítás határozzák meg a tereket. A lakás könnyen személyre szabható, hosszú távon is jól működő alapot ad. Ez egy tudatosan felépített városi lakás, amely elosztásában, műszaki tartalmában és megjelenésében is kiegyensúlyozott döntést kínál.Várható befejezés: 2026. május.KINEK AJÁNLJUK?1.Akik a belvárosi luxus életérzést keresik2.A történelmi környezet rajongóinak3.Prémium, értékálló befektetésben gondolkodóknak4.Azoknak, akik kész, igényes megoldást szeretnének saját részreOlyan igényes leendő tulajdonost keresünk, aki értékeli a múlt eleganciáját és a modern design letisztultságát, és fontos számára a kifogástalan minőség.------------------------------------Díjmentes, bankfüggetlen hiteltanácsadással támogatjuk vevő ügyfeleinket a számukra legelőnyösebb finanszírozási döntések meghozatalában. Opcionálisan igénybe vehető kiegészítő szolgáltatásainkkal – mint ügyvédi közreműködés, energetikai tanúsítvány vagy villamos biztonsági felülvizsgálat – teljes körű szakmai támogatást nyújtunk az adásvétel folyamatának minden egyes lépésénél.-------------------------------------A hirdetésben szereplő információk tájékoztató jellegűek. A tévedés és az árváltoztatás jogát fenntartjuk. Az esetleges elírásokért és technikai hibákért felelősséget nem vállalunk.
Hirdető adatai
Hirdető neve: Otthon Centrum
Kapcsolattartó: Török Dávid
Hirdető telefonszáma: +36 70 461 9106
Honlap: -