Hajdú-Bihar megye, Debrecen
 

Ingatlan adatai
Irányár: 295 000 000 Ft
Típus: ház
Kategória: eladó
Alapterület: 276 m2
Állapota: -
Építés éve: 1986
Fűtés: gáz (cirko)
Felszereltség: -
Szobák száma: 5
Szintek száma: -
Telekterület: 470 m2
Kert mérete: 470 m2
Erkély mérete: 31 m2
Parkolás: -
Kilátás: -
Egyéb extrák:  
-
Részletes leírás
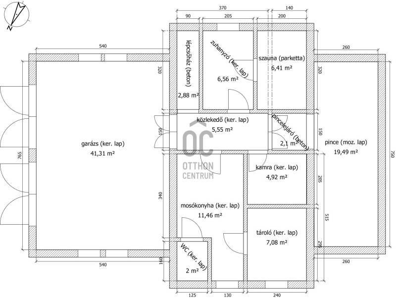
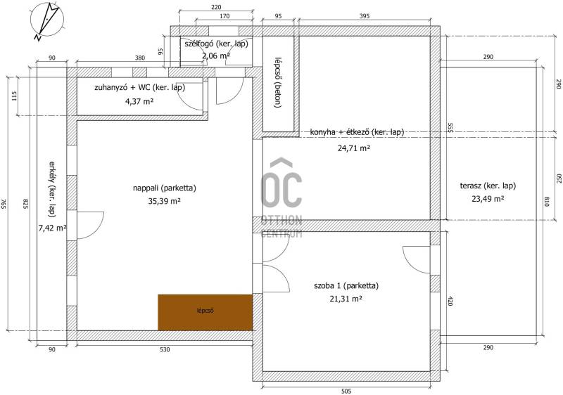
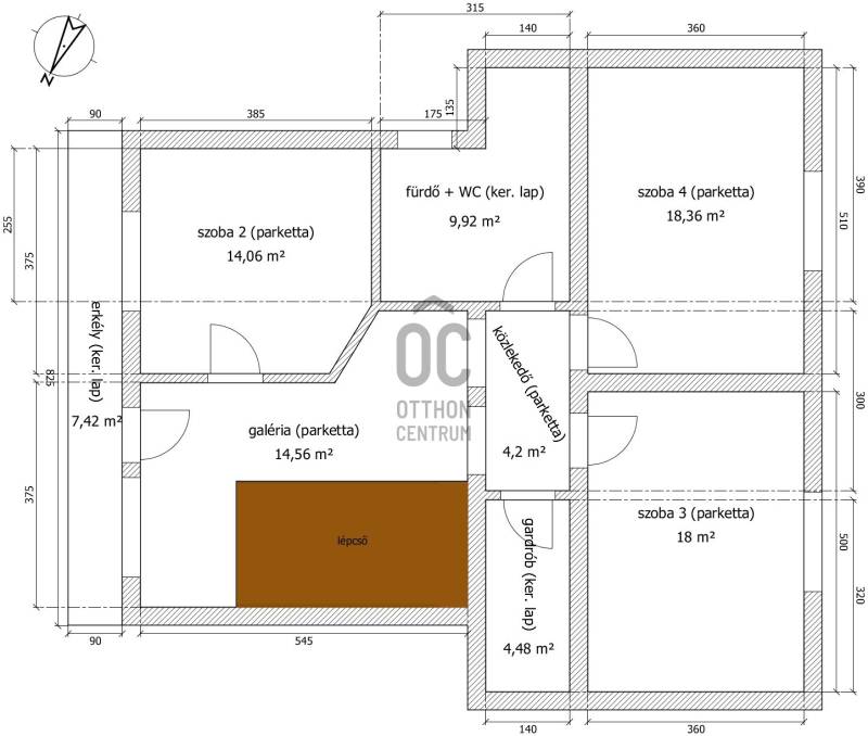
Debrecenben, a klasszikus Nagyerdőn, a Nagyerdei körútból nyíló csendes kis utcában, 276 nm-es (+ 42 nm-es dupla garázs) alapterületű, nappali + nagy konyha-étkezős + 4 nagy hálós + 2 fürdő + wc-s + a szuterén szinten külön fürdő és wc-s, a nyolcvanas években, 470 nm-es telken épült kétszintes (+a szuterén szint) gáz-cirkó fűtéses önálló családi ház eladó.A ház 2020-ban teljeskörű belső felújításon esett át (villany és gáz vezetékek cseréje, kondenzációs kazán,burkolatok,stb) kivéve a konyhai burkolat és a konyhaszekrény melyek régebbiek.A ház tégla falazatán 10 cm szigetelés van, a tetőn Bramac cserép,műanyag nyílászárók redőnnyel részben rovarhálóval ellátva, van szobánként klíma, van riasztó és elektromos kapu, a szuterén szinten szauna hozzá tartozó zuhanyzóval és téglával kirakott borospince található valamint 42 nm-es 2 állásos garázs, a parkosított kertben szalonnasütő és kiépített öntözőrendszer, kerti csap.
Hirdető adatai
Hirdető neve: Otthon Centrum
Kapcsolattartó: Visi Ferenc
Hirdető telefonszáma: +36 70 388 5216
Honlap: -