Pest megye, Dabas
 

Ingatlan adatai
Irányár: 24 300 000 Ft
Típus: telek
Kategória: eladó
Alapterület: 943 m2
Állapota: -
Építés éve: -
Fűtés: -
Felszereltség: -
Szobák száma: -
Szintek száma: -
Telekterület: 943 m2
Kert mérete: -
Erkély mérete: -
Parkolás: -
Kilátás: -
Egyéb extrák:  
-
Részletes leírás
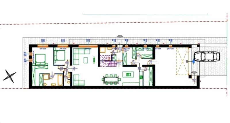
BEFEKTETŐK, ÉPÍTTETŐK FIGYELEM!! Budapesttől 35 percre Dabason, eladó egy 943 nm-es telek. A telek szélessége 12 m. A tulajdonos tervezett a telekre egy modern ötletes házat, amit igény szerint akár meg is épít. A telektől nincs messze a bolt, busz megálló, iskola, óvoda. Az áram telken belül, víz, csatorna, gáz az utcában. Ha felkeltette érdeklődését, hívjon a 06204004006 telefonszámon. Vevőknek szolgáltatásaink ingyenesek! Bankfüggetlen, díjmentes hiteltanácsadás, energetikai tanúsítvány készítése egy nap alatt, értékesítés gyorsan és profin.....Mert mi itthon vagyunk!
Hirdető adatai
Hirdető neve: Dabas Régió
Kapcsolattartó: Asztalnokne Lívia
Hirdető telefonszáma: 06 20 400 4006
Honlap: -