Baranya megye, Orfű
 

Ingatlan adatai
Irányár: 74 900 000 Ft
Típus: ház
Kategória: eladó
Alapterület: 97 m2
Állapota: -
Építés éve: 2008
Fűtés: egyéb
Felszereltség: -
Szobák száma: 5
Szintek száma: -
Telekterület: 5 956 m2
Kert mérete: 5 956 m2
Erkély mérete: -
Parkolás: -
Kilátás: -
Egyéb extrák:  
-
Részletes leírás
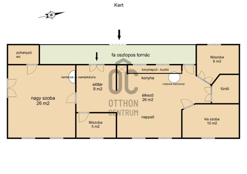
Vágyik egy helyre, ahol a reggeli kávé mellé templomtoronyra néző panoráma és erdőszéli csend jár? Orfű belterületén, egy hatalmas, közel 6000 m²-es dupla telken várja új gazdáját ez a különleges, autentikus parasztház.Hatalmas tér, végtelen lehetőség: A két helyrajzi számon fekvő, összesen 5956 m²-es terület valójában 2-3 építési portányi helyet kínál – ideális családi rezidenciának, vendégháznak vagy befektetésnek. Csodás panorámát nyújt Orfű községre, a templomtoronyra, illetve a környező hegyoldalakra. A telek egyik vége erdővel határos.A szép, tornácos ház helyi védettség alatt áll, nettó alapterülete 97 m2, amely áll előtérből, nagy konyha-étkező-nappali helyiségből (26 m2), nagyszobából, amely külön bejáratú is lehet, saját fürdő+wc-vel, kuckós kemencével, 2 félszobából, és egy kisebb szobából, valamint még egy fürdő+wc helyiségből. A fürdők két éve lettek átalakítva. A házhoz tartozik egy kívülről megközelíthető 15 m2-es pince, illetve egy melléképület, fészer, amelynek a megerősítése szükséges.A ház modernizálása 2008-ban történt, pl. a víz-, és villanyvezetékek cseréje, bekerültek a látszó fagerendák, kialakították a vízelvezetést a ház körül. Akkor készült el a két búbos kemence, amelyek közül a nappaliban lévő vízteres kialakítású, erről működik keringetős rendszerrel a radiátoros központi fűtés. A másik a nagyszobában van, az előtér felől fűthető, a szecessziós cserépkályhán keresztül. (Tipp: Ez a nagyszoba leválasztható a lakótér többi részétől, külön apartmanként funkcionálhat önálló utcai bejárattal.) A ház egyedi gyártású külső-belső nyílászárókat kapott, a hidegburkolat padlástégla, a fapadló pedig egyedi, asztalos által készített, de felújításra szorul. A födém-, és tetőszerkezet még eredeti állapotában van.Több, mint egy ingatlan: Életérzés.Ez a porta nem csak falakból áll – erős kisugárzása, békéje azonnal magával ragadja az embert. Itt az erdő a szomszéd, a kilátás pedig minden nap más arcát mutatja.Az ingatlan per- és tehermentes, azonnal birtokba vehető. Az energetikai tanúsítvány készítése folyamatban van, amint rendelkezésre áll, úgy azzal a hirdetés frissítésre kerül.Jöjjön el, érezzen rá a hangulatára, és legyen Ön is büszke orfűi lakos!Kérem, tekintse meg a tájékoztató jellegű alaprajzot!Tájékoztatásért hívjon nyugodtan!
Hirdető adatai
Hirdető neve: Otthon Centrum
Kapcsolattartó: Szabó Tibor
Hirdető telefonszáma: +36 70 716 9031
Honlap: -