Pest megye, Százhalombatta
 

Ingatlan adatai
Irányár: 119 000 000 Ft
Típus: ház
Kategória: eladó
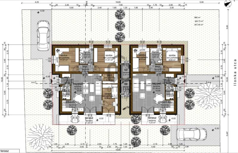
Alapterület: 75 m2
Állapota: új
Építés éve: 2026
Fűtés: -
Felszereltség: -
Szobák száma: 4
Szintek száma: -
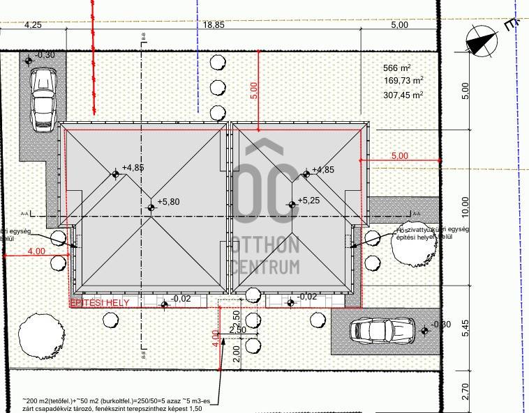
Telekterület: 566 m2
Kert mérete: 566 m2
Erkély mérete: 11 m2
Parkolás: -
Kilátás: -
Egyéb extrák:  
-
Részletes leírás
ÁLLAMI TÁMOGATÁS, (2,6 M Ft)ÁFA VISSZAIGÉNYLÉS (5%)ILLETÉKMENTESSÉG (4 %)BABAVÁRÓ ÉS TÁMOGATOTT CSOK HITEL.Eladó egy földszintes, nettó 74,81(bruttó 90) nm-es N + 3 szobás ikerház ház 2 számú lakása, 566 nm-es telken.A ház 30-as POROTHERM téglából épül, 15 cm-es DRYVIT szigeteléssel. A nyílászárók háromrétegű üvegezésűek.A fűtést hőszivattyú (6 KW) biztosítja, padlófűtés hőleadással.A ház kulcsrakész állapotban kerül átadásra. A burkolatokat, szanitereket, valamint a beltéri ajtókat az új tulajdonos választhatja ki. A parkolásra felszíni kocsibeálló áll rendelkezésre.Az infrastruktúrája jó, óvoda, iskola, bevásárlási lehetőség gyalogosan pár perc alatt elérhető.Valamint a buszmegálló is pár perc sétatávolságra található(Budapest Kelenföld és Érd)Az Otthon Centrum irodáiban hitel tanácsadó segíti az igénylés teljes folyamatát, hitel felvétel esetén megkeresi az Önnek legmegfelelőbb ajánlatot a bankok kínálatából.Vegye igénybe ingyenes szolgáltatásainkat!
Hirdető adatai
Hirdető neve: Otthon Centrum
Kapcsolattartó: Mészárosné Sőregi Mara
Hirdető telefonszáma: +36 70 461 9656
Honlap: -