Veszprém megye, Tapolca
 

Ingatlan adatai
Irányár: 167 640 000 Ft
Típus: ház
Kategória: eladó
Alapterület: 434 m2
Állapota: felújítást igényel
Építés éve: 1980
Fűtés: -
Felszereltség: -
Szobák száma: 8
Szintek száma: -
Telekterület: 1 m2
Kert mérete: 1 m2
Erkély mérete: -
Parkolás: -
Kilátás: -
Egyéb extrák:  
-
Részletes leírás
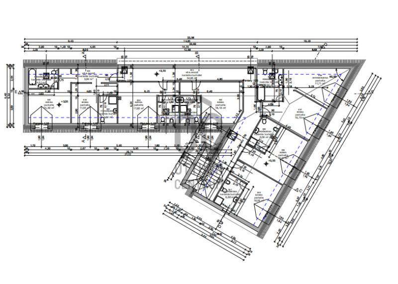
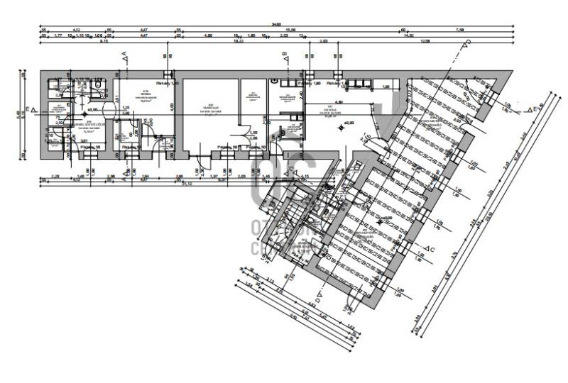
KIEMELT MEGBÍZÁS AZ OTTHON CENTRUM KÍNÁLATÁBAN Tapolca frekventált részén, közvetlenül az egyik főutca mellett, eladó egy korábban kiválóan működő étterem és panzió, a sokak által ismert Vadrózsa Apartman és Étterem. Az ingatlan évek óta nem üzemel, így szabadon újragondolható – panzió, apartmanház, étterem vagy akár többfunkciós befektetés céljára.Főbb adatok:- 434 m² összterületű ingatlan- 573 m² telek- 7 apartman, mindegyik saját fürdőszobával (zuhanyzós és kádas kialakítás vegyesen)- Ét­terem, konyha, bárpúlt- Térkövezett udvar- Külön iroda, mosókonyha, kazánház- Gázkazános fűtés- Összközműves.- Parkolás az utcán és az udvarban is megoldott/ Alaprajzok és pontos helyiséglista, a képek között elérhetőek/Elhelyezkedés: Tapolca egyik legjobb, jól látható pontján – ideális vendégek, turisták és helyiek számára egyaránt.Tapolca a Balaton-felvidék nyugati szélén, a Tapolcai-medence közepén helyezkedik el. Tapolca egyértelműen leghangulatosabb, országos összevetésben is páratlan látványossága a tóparti főtér: a Malom-tó és a mellette épült középkori eredetű házsor hangulata nehezen engedi el a látogatót. Tapolca szláv jelentése meleg víz - a forrásvíz 18 fokon tör elő a város alatti karsztos barlangrendszerből. Hőmérsékleténél fogva a tó vize nem fagy be télen. A várost körülölelik a Tapolcai-medence bazalthegyei.A város saját stranddal rendelkezik.Az ingatlan a Balaton második vonalában, a Magyar Tengertől mindössze 14 km távolságra helyezkedik el.Ha olyan ingatlant keres, amely múltjára építve újra sikerre vihető, és komoly üzleti potenciált rejt magában, ez a lehetőség Önre vár.Amennyiben felkeltettem érdeklődését vagy kérdése van, forduljon hozzám bizalommal!
Hirdető adatai
Hirdető neve: Otthon Centrum
Kapcsolattartó: Bolla Róbert
Hirdető telefonszáma: +36 70 469 3336
Honlap: -