Heves megye, Gyöngyös
 

Ingatlan adatai
Irányár: 69 900 000 Ft
Típus: kereskedelmi/ipari ingatlan
Kategória: eladó
Alapterület: 185 m2
Állapota: -
Építés éve: -
Fűtés: -
Felszereltség: -
Szobák száma: -
Szintek száma: -
Telekterület: -
Kert mérete: -
Erkély mérete: -
Parkolás: -
Kilátás: -
Egyéb extrák:  
-
Részletes leírás
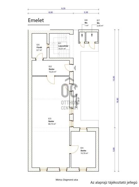
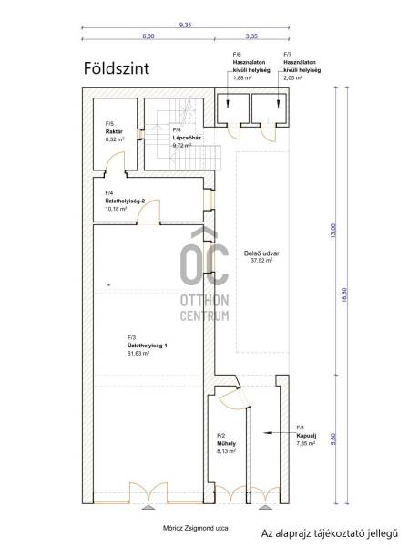
Gyöngyös belvárosában, a Fő tér közvetlen közelében kínálunk megvételre egy kiváló adottságokkal rendelkező, két szintes, 185 m²-es sorházi ingatlant, amely üzleti és lakófunkciót egyaránt magában foglal.Az ingatlan kis belső udvarral, pincével és beépíthető tetőtérrel rendelkezik, így további bővítési lehetőséget kínál.Földszint – üzlethelyiségAz utcafronton jelenleg is működő szemvizsgáló szalon található, amely stabil üzleti hasznosításra ad lehetőséget.Emelet – lakás (92 m²)A lakás a függőfolyosón keresztül közelíthető meg, és kifejezetten világos, napfényes terekkel rendelkezik:tágas, 60 m²-es amerikai konyhás nappali15 m²-es hálószobaa lakás belső részében egy további szoba6,7 m²-es zuhanyzós fürdőszobaTovábbi előnyökbeépíthető tetőtérpince az épület alattkis, intim belső udvarkiváló belvárosi lokációAz ingatlan elsősorban befektetők számára ideális, hiszen az üzlet és a lakás együttes hasznosítása többféle bevételi lehetőséget biztosít.Ne hagyja ki ezt a ritka belvárosi befektetési lehetőséget, hívjon bizalommal és egyeztessünk időpontot a megtekintésre!A hirdetésben szereplő adatok a tulajdonosok által rendelkezésre bocsátott információk alapján kerültek feltüntetésre.Az ingatlan energetikai tanúsítványának elkészítése folyamatban van.
Hirdető adatai
Hirdető neve: Otthon Centrum
Kapcsolattartó: Juhász Andrea
Hirdető telefonszáma: +36 70 465 7001
Honlap: -