Békés megye, Békéscsaba
Békéscsaba, Klapka utca 

Ingatlan adatai
Irányár: 72 900 000 Ft
Típus: ház
Kategória: eladó
Alapterület: 130 m2
Állapota: -
Építés éve: -
Fűtés: gáz (cirko)
Felszereltség: -
Szobák száma: 5+1
Szintek száma: -
Telekterület: 800 m2
Kert mérete: 800 m2
Erkély mérete: -
Parkolás: -
Kilátás: -
Egyéb extrák:  
-
Részletes leírás
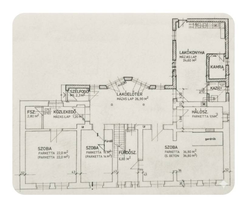
A családi házból most folyik a kiköltözés! Eladó polgári hangulatú családi ház Békéscsabán, a Klapka utcában Békéscsabán, a Klapka utcában kínálunk megvételre egy kb. 130 m²-es, polgári jellegű, tágas családi házat, amely kiváló választás lehet akár nagyobb család számára is. Az ingatlan közepesen jó, lakható állapotú, ugyanakkor kiváló adottságainak köszönhetően egy felújítás után igazán különleges, egyedi otthonná alakítható.- Főbb jellemzők,- Kb. 130 m² lakótér, polgári stílus, nagy belmagasság, tágas terek, cirkó kazán biztosítja a fűtést, klíma gondoskodik a hűtésről, hangulatos kandalló a nappaliban, fa és műanyag nyílászárók, redőnyökkel, beépített szekrények és gépesített konyha a vételár részét képezik.-Helyiségek elrendezése, ( (4 hálószoba, 3 fürdőszoba)A házba belépve egy előszobába érkezünk, ahonnan egy világos, nagy méretű nappali nyílik. A nappali különlegessége a kandalló, valamint az udvar felé néző nagy üvegfelület, amely bőséges természetes fényt biztosít. Innen közvetlen kijárat nyílik az udvarra. A nappaliból nyílik az összes helyiség, külön közlekedőből, egy szoba és egy fürdőszoba, nappaliból nyíló szoba saját, kis fürdővel, egy 36 m²-es, három részre tagolt szoba (háló, gardrób, dolgozószoba), saját nagy fürdőszobával, galériás gyerekszoba,konyha + étkező + kamra. A konyhából szintén közvetlen kijárat biztosított az udvarra.Az ingatlan udvara jól kihasználható, családbarát kialakítású, fedett gyermek játszórész,kültéri angol wc és zuhanyzó. 1 állásos garázs, fedett beálló 2 autó számára.Miért jó választás?egyedi, polgári hangulat, kiváló térkihasználás, sok külön nyíló helyiség, több fürdőszoba – ideális nagycsaládosoknak, nappali és konyha közvetlen kertkapcsolattal.Gyalog is minden elérhető, kiváló alap egy értéknövelő felújításhoz.
Hirdető adatai
Hirdető neve: Alföld Ingatlan Center
Kapcsolattartó: Petruzsán Anikó
Hirdető telefonszáma: +36301538234
Honlap: -