Tolna megye, Szekszárd
 

Ingatlan adatai
Irányár: 79 500 000 Ft
Típus: ház
Kategória: eladó
Alapterület: 92 m2
Állapota: -
Építés éve: 1965
Fűtés: gáz (cirko)
Felszereltség: -
Szobák száma: 3
Szintek száma: -
Telekterület: 799 m2
Kert mérete: 799 m2
Erkély mérete: -
Parkolás: -
Kilátás: -
Egyéb extrák:  
-
Részletes leírás
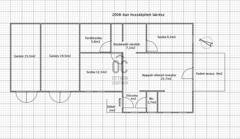
Szekszárdon a Zrínyi utcában jó állapotú felújított családi ház, 2 garázzsal és hozzáépített 3 szobás lakrésszel eladó!Az elektromos kapuval ellátott, 799m2-es telken található egy 3 szobás 92m2-es tégla falazatú családi ház, valamint 2 db garázs és a garázsokhoz 2008-ban hozzáépített 3 szobás 70m2-es külön bejárattal rendelkező lakrész.Az eredeti családi házat tulajdonosai az alábbiak szerint felújították:-homlokzat szigetelése 10cm-tető cseréje beton cserépre-betongerendás födém 10cm szigeteléssel-aljzat víz és hőszigetelése- fa külső nyílászárók 3 rétegű üvegezéssel -2 bejárat kialakítása-gáz cirkó fűtésrendszer kiépítése, Bosch kazán-hideg és meleg burkolatok cseréje-víz és villanyvezetékek cseréje, 3X16 Amper-klíma -fürdőszoba felújítása-beltéri ajtók cseréje-beépített redőnyökA telken található továbbá 2 db garázs is, melyhez tulajdonosa 2008-ban hozzáépített egy 3 szobás önálló lakrészt az alábbiak szerint:-téglalépítésű, homlokzata 10cm szigeteléssel-aljzat víz és hőszigetelése-födém szigetelés 20cm-gáz cirkó fűtésrendszer kiépítése-padlófűtés a előszobában, nappaliban, konyhában, fürdőszobában, szobákban radiátor-fa külső nyílászárók 2 rétegű üvegezéssel-sarokkádas fürdőszoba-klíma-3 fázis 3X16 AmperAjánlom elsősorban olyan Vevőknek akik 2 generáció együttélésében gondolkodnak, de mégis külön lakrészben, hiszen igen ritka az ilyen adottságokkal rendelkező ingatlan a piacon!Megtekintené? Hívjon, megmutatom!Reg.szám:H516167Teljes körű pénzügyi megoldások ügyintézése díjmentesen. Minden élethelyzetre végzünk pénzügyi elemzést - ha vásárolni szeretne, segítünk, hogy ezt a legjobb feltételek mellett tegye; ha eladni szeretné ingatlanát, nézzük meg, hátha érdemes meglévő hitelét átváltani.Keressen bizalommal, szakértők vagyunk!
Hirdető adatai
Hirdető neve: Otthon Centrum
Kapcsolattartó: Beilert Attila
Hirdető telefonszáma: +36 70 388 5666
Honlap: -