Hajdú-Bihar megye, Debrecen
 

Ingatlan adatai
Irányár: 58 900 000 Ft
Típus: lakás (tégla)
Kategória: eladó
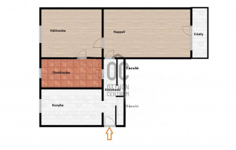
Alapterület: 55 m2
Állapota: -
Építés éve: 1980
Fűtés: gáz (konvektor)
Felszereltség: -
Szobák száma: 2
Szintek száma: -
Telekterület: -
Kert mérete: -
Erkély mérete: 5 m2
Parkolás: -
Kilátás: udvari
Egyéb extrák:  
-
Részletes leírás
Debrecen kedvelt, csendes városrészén, a Viola utcában eladó egy jó állapotú, csúsztatott zsalus technológiával épült, 55 m²-es társasházi lakás Az ingatlan két tágas, jól bútorozható szobával rendelkezik, így praktikus és élhető elrendezést kínál.Főbb jellemzők:✨ 55 m² alapterület Két nagy méretű, világos szobaJó állapotú konyha Fürdőszoba Praktikus elosztás, jól kihasználható terek Önállóan használt tároló tartozik a lakáshoz Csendes, rendezett környezet Kiváló tömegközlekedés és infrastruktúra (üzletek, egyetemek, szolgáltatások a közelben) A közös költség tartalmaz társasházi felújítási alapotElhelyezkedése és adottságai miatt befektetési célra is kiváló választás, a környéken erős bérleti kereslet jellemző. További információért vagy megtekintésért kérem, vegye fel velem a kapcsolatot!
Hirdető adatai
Hirdető neve: Otthon Centrum
Kapcsolattartó: Ihász János
Hirdető telefonszáma: +36 70 716 9461
Honlap: -